首页
知识
图纸
方案
全部
建筑
水利
结构
园林
水利工程
建筑工程
结构工程
路桥工程
园林工程
暖通工程
环保工程
给排水工程
岩土工程
电气工程
工程造价
CAD教程
工程知识
工程监理
装修装饰
节能工程
工程测绘
工程安全
论文写作
3D模型
实习报告
工程图纸
施工方案
工作总结
工程论文
毕业设计
您当前位置:
首页
»
水利工程
»
水利图纸
»
节水灌排
节水灌排
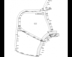
2024 流域生态修复工程施工图集 184P
生态修复工程;主要建设内容包括但不限于水毁挡墙修复、新建挡墙、交通便桥和人行便桥拆除重建、水闸拆除重建等;……
阅读全文>
土木网友
2026-03-16
2023 水库中型灌区提灌站施工图 91P
本工程主要建设内容为新建泵站、蓄水池、管网铺设,根据《泵站设计标准》(GB50265-2022)规定,进水池的水下容积可按共用该进水池水泵30倍~50倍设计流量确定。……
阅读全文>
土木网友
2026-03-16
高速路网旁排洪渠工程结构及配筋图纸
高速路网旁排洪渠工程结构及配筋图纸,22P,PDF文档 ……
阅读全文>
土木网友
2026-03-16
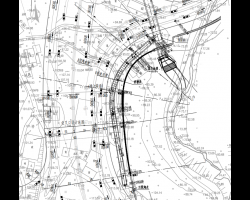
2023 河沟生态整治工程施工图
控制集雨面积0.78km²,主河道长1.92 km,河道平均比降53.68‰。防洪标准按50年一遇设计,级别为2级。建设主要内容为新建防洪堤、新建箱涵及工程附属建筑物。……
阅读全文>
土木网友
2026-03-16
水库中型灌区续建配套与节水改造项目施工图
水库中型灌区续建配套与节水改造项目施工图设计内容:渠首工程:新建加压泵站一座,改造提灌站3座(何家湾新增提水设备、唐家桥提灌站设备安装及拆除、跃进提灌站改建)。……
阅读全文>
土木网友
2026-03-16
2023 中干渠改道工程及箱涵修筑施工图
渠道改道总长度770米。中干渠改道工程建设内容为:修建明渠650m,箱涵修筑120m以及其他配套渠道管护工程。本渠道改道工程设计流量3.8m³/s,渠道及主要渠系建筑物级别为5级。……
阅读全文>
土木网友
2026-03-16
2023 灌区续建配套节水改造项目水闸施工图
建设任务为对水闸进行拆除重建。原水闸拆除,将水闸分为两座分别移至支渠上。分水闸闸门采用液压下翻板式闸门,配套有成品液压泵房。……
阅读全文>
土木网友
2026-03-04
2024 水库灌区续建配套与节水改造项目施工图
建筑层数及高度:启闭机房为地上1层:建筑层高为3.900m(泄水闸和泄洪闸为4.200m、YTH型为3.300m)本工程启闭机房属于一层厂房建筑,耐火等级为三级……
阅读全文>
土木网友
2026-01-04
农村饮水安全项目图纸及招标文件
招标工程项目基本情况1、水源工程:新建提泵站2座,新建2m³集水池1口、20m³水池2口;……
阅读全文>
土木网友
2025-09-05
农村饮水安全供水工程给水管道结构施工图
本项目为农村给水厂安全饮水工程,通过常规净水工艺达到人畜饮用水标准。日均供水量1800t,对河道影响甚微。本工程配水管均选用聚乙烯管材,干管公称压力不小于0.3kpa。……
阅读全文>
土木网友
2025-09-05
某农田水利枢纽cad设计施工图纸
低压灌溉管道采用UPVC双壁波纹管,要求工作压力不小于0.2MPa,环刚度大于8KN/平方米。……
阅读全文>
土木网友
2025-06-24
2023高标准农田建设项目施工图
单体排水沟工程中,水沟采用C25砼现浇,底部设置碎石垫层,砼沟渠每10m设置一伸缩缝,内嵌1cm厚沥青松木板,当沟渠遇到地块的导渗沟时,应设置进水口。……
阅读全文>
土木网友
2024-08-09
中型灌区续建配套节水改造实施方案图纸
中型灌区续建配套节水改造实施方案图纸包括:西闸布置图、西闸结构图、子闸布置图、子闸结构图、黄沟闸布置图、黄沟闸结构图、黄沟闸控制段结构图等。……
阅读全文>
土木网友
2022-10-25
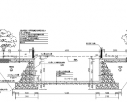
排灌站配套工程施工图
排灌站配套工程施工图包括:桥位平面布置图、地质剖面图、桥梁立面及平面围、桥合结构图、桥墩结构图、桥梁横断面图、16m空心板边板一般构造图等。……
阅读全文>
土木网友
2022-10-25
河道治理工程初步设计施工图纸PDF 185P
河道治理工程初步设计施工图纸包括:河治理工程平面总布置图、河本干平面布置图、河本干纵断面图、河本干横断面图、河生态护坡典型结构图、河波浪桩结构图等。……
阅读全文>
土木网友
2022-10-25
河坝灌区续建配套与节水改造工程施工图PDF 130P
灌区工程的工程等别为Ⅳ等。本工程主要建筑物级别为 5 级,次要建筑物级别为5 级,设计防洪标准为 10 年一遇。……
阅读全文>
土木网友
2022-10-10
某城镇水系连通综合治理工程施工图(含工程量清单)
根据xxx镇水系格局及规划引配水设施,采用“北水南引、先西后东”的规划格局,通过工程措施和运行调度手段,自北向南引入水质相对较好的xx河水,经区域内骨干沟渠输送和闸泵等配水设施的统一调配;……
阅读全文>
土木网友
2022-10-09
排渠清淤护砌工程施工图纸(含工程量清单)
现状xx桥至xx路排渠为土渠,工程段总长度约为1900m,该段现年久失修, 淤塞以及局部垮塌严重,从而影响中心港泵站的正常运行。因此对xx桥至xx路排渠进行清淤护砌尤为必要。……
阅读全文>
土木网友
2022-10-09
河道水生态清洁工程建设施工图
河道水生态清洁工程建设施工图包括:项目区位置图、土地利用图、水土流失图、面源污染现状图、沟(河)道及湖库周边现状图、人居环境现状图等。……
阅读全文>
土木网友
2022-06-26
4.55千米河道治理工程施工图
4.55千米河道治理工程施工图包括:八曲河平面图、断面图(护坡护岸+松木桩+堤防险情)、八曲河进度图、八曲河平面布置图、八曲河施工总平面图等。……
阅读全文>
土木网友
2022-06-26
首页
上一页
1
2
3
4
5
下一页
尾页
栏目导航
工程网
工程图纸
工程施工
工程论文
工程知识
毕业论文
实习报告
3d模型
工作总结
CAD教程网
热门图纸
毕业设计
水利图纸
橡胶坝计算及施工图纸
建筑图纸
住宅户型样板房施工图及实景
结构图纸
综合办公楼框架结构施工图
园林图纸
园林综合图库
暖通图纸
水土保持方案报告书
路桥图纸
桥型布置图
给排水
某高层商住两用建筑给排水施工图
电气图纸
地下层机电施工图
水利毕业
水利枢纽粘土心墙坝毕业设计
建筑毕业
7度某中学学生宿舍楼毕业设计
结构毕业
教学楼毕业设计
园林毕业
某住宅区景观设计毕业论文答辩方案ppt
暖通毕业
十六层框架结构住宅楼室内采暖系统设计 45P
路桥毕业
高速公路计算设计书(毕业设计)
给排水
某城市给排水毕业设计
电气毕业
社区中心全套项目施工图纸(含建筑结构水电暖)
道路及桥梁专业毕业设计全套
路桥专业毕业设计(全套)
地铁站主体结构毕业设计(含开题报告、任务
十六层综合楼给排水本科毕业设计书 87P
热点论文
工程知识
建筑论文
厦门市农村住宅通用图集(90户型汇编2022年版)
结构论文
山东省住建厅关于落实房屋市政工程建设单位安全生
水利论文
如何聚焦重点领域加强岗位开发?一图看懂
园林论文
园林绿化中造景理念创新思维分析
路桥论文
北京市地方标准《城市轨道交通工程设计标准》修订
电气论文
电气工程中电气自动化实践研究
造价论文
建设工程计价依据热点问题解答(2026年4月)
CAD教程
AUTOCAD滚动条设置怎么操作
施工知识
AUTOCAD——图形单位与图形边界
建筑知识
地下车库有哪些五大设计要点?
造价知识
基坑支护方案选型及成本速查表
结构知识
混凝土养护的“8个误区”
电气知识
普通照明、应急照明、事故照明系统的设计
安全文明
寒潮来袭!冬季施工安全八防请落实
市政知识
水稳层施工工艺及注意事项
合同知识
工程合同管理索赔合理性认定知识点
互动交流
微信扫码关注公众号
获取更多土木资讯