您当前位置:首页 » 水利工程 » 水利图纸 » 节水灌排

2023 中干渠改道工程及箱涵修筑施工图

  • 资料等级:
  • 授权方式:资料共享
  • 发布时间:2026-03-16
  • 资料类型:RAR
  • 资料大小:7.6 MB
  • 资料分类:水利图纸
  • 运行环境:WinXp,Win2003,WinVista,Win ;
  • 解压密码:gc5.com
2023 中干渠改道工程及箱涵修筑施工图
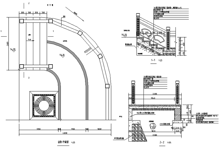
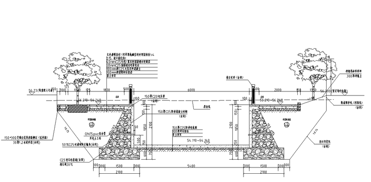
渠道改道总长度770米。中干渠改道工程建设内容为:修建明渠650m,箱涵修筑120m以及其他配套渠道管护工程。本渠道改道工程设计流量3.8m³/s,渠道及主要渠系建筑物级别为5级。渠道及主要渠系建筑物设计防洪标准为10年一遇。本次设计箱涵共计5个,断面尺寸为1-6m(B)x2m(H)。
资料截图
  • 2023 中干渠改道工程及箱涵修筑施工图
  • 2023 中干渠改道工程及箱涵修筑施工图
  • 2023 中干渠改道工程及箱涵修筑施工图