首页
知识
图纸
施工
毕业
全部
建筑
水利
结构
园林
水利工程
建筑工程
结构工程
路桥工程
园林工程
暖通工程
环保工程
给排水工程
岩土工程
电气工程
工程造价
CAD教程
结构论文
结构图纸
毕业设计
计算分析
结构施工
结构课件
PKPM
3D3S
ansys
结构表格
结构总结
抗震加固
实习报告
结构规范
结构书籍
您当前位置:
首页
»
结构工程
结构论文
结构图纸
毕业
计算
施工
课件
PKPM
3D3S
ansys
抗震
广联达钢筋计算设置钢筋锚固,是取自身混凝土强度等级
在工程造价预算及结算和施工现场,钢筋锚固长度的计算一直是核心易错点。其中,锚固混凝土强度取值(自身构件vs锚固区构件),更是直接影响锚固长度,错设会导致量钢筋量差,埋下结算纠纷与结构安全隐患。本文严格依据16G101、17G101、22G101图集条文,讲清取值逻辑,并给出广联达土建BIM一体化平台GTJ2021-2026的标准设置步骤,帮你彻底规避错算风险。
阅读全文>
土木网友
2026-05-07 16:40:28
地基验槽主要验收内容
地基验槽主要验收内容
阅读全文>
土木网友
2026-05-07 16:36:30
钻孔灌注桩后压浆技术
近年来,钻孔灌注桩后压浆技术发展较快,已在许多高层建筑中应用,效果较好。例如北京市建筑设计研究院设计的现代城(四十层),采用此技术,不但桩承载力有较大提高,沉降量也减少,该栋楼在结构封顶时,最大沉降量仅为33.6mm.
阅读全文>
土木网友
2026-05-07 16:35:38
梁支座裂缝,是否考虑梁两侧翼缘的影响?
梁支座裂缝,是否考虑梁两侧翼缘的影响?
阅读全文>
土木网友
2026-05-07 16:34:47
结构设计总说明重点学习
结构设计总说明重点学习
阅读全文>
土木网友
2026-05-07 16:34:17
22G101-1中需要设计指定的几个地方
22G101-1中需要设计指定的几个地方
阅读全文>
土木网友
2026-05-07 16:25:34
格构梁、柱、挡墙钢筋的施工方案
格构梁、柱、挡墙钢筋的施工方案
阅读全文>
土木网友
2026-05-07 15:44:43
为什么对不小于25mm厚板件宜采用开局部坡口的角焊缝?
为什么对不小于25mm厚板件宜采用开局部坡口的角焊缝?
阅读全文>
土木网友
2026-05-07 15:28:29
钢结构符号大全
钢结构符号大全
阅读全文>
土木网友
2026-05-07 15:23:34
什么是强度、刚度、硬度、挠度?
什么是强度、刚度、硬度、挠度?
阅读全文>
土木网友
2026-05-07 14:59:16
钢结构安装专项方案审查要点
钢结构安装专项方案审查要点
阅读全文>
土木网友
2026-05-07 11:13:09
你的混凝土质量控制做全了吗?
在建筑工程中,预拌混凝土的质量直接关系到结构安全和工程耐久性。作为工程管理人员,您是否建立了完整的质量控制体系?本文将为您梳理预拌混凝土质量控制的完整检查清单,帮您查漏补缺。
阅读全文>
土木网友
2026-05-07 10:35:28
消防管道的抗震支架,为什么有的是“两只脚”,有的是
在施工现场,我们常听到老师傅把抗震支架形象地称为“两只脚”或“三只脚”。这种生动的称呼背后,其实隐藏着重要的抗震原理和规范要求。今天,我们就来聊聊这些“脚”背后的学问。
阅读全文>
土木网友
2026-05-07 10:32:38
完整的预制构件进场质量控制检查清单
在装配式建筑快速发展的今天,混凝土预制构件的质量直接关系到整体工程的结构安全与施工质量。项目监理机构作为现场质量控制的关键环节,必须严格把关。本文整理出一份清晰、完整的预制构件进场质量控制检查清单,监理与施工人员均可参考使用。
阅读全文>
土木网友
2026-05-07 10:04:45
全面解析钢结构工人的工作职责
文章将全面解析钢结构工人的工作职责,分为四个部分:1、钢结构工人的基本工作职责;2、钢结构工人的安全职责;3、钢结构工人的技术职责;4、钢结构工人的团队协作职责。通过对每个部分的详细阐述,让人们更加了解钢结构工人的工作内容。
阅读全文>
土木网友
2026-04-28 08:54:21
钢渣破碎钢结构施工图
钢渣破碎钢结构施工图包括钢框架基础布置图、框架柱顶节点大样图、提升机框架各层平面结构图、立面斜杠布置图、钢框架节点详图等
阅读全文>
土木网友
2026-05-07 10:10:00
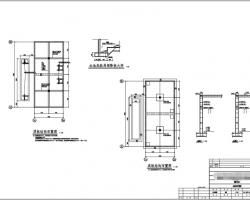
别墅结构施工图
别墅结构施工图包括结构平面图、屋顶结构平面图、局部突出结构平面图、梁配筋图等
阅读全文>
土木网友
2026-05-07 10:10:00
结构设计图
结构设计图包括女儿墙构造、台阶详图、地漏构造、雨篷详图、檐沟详图、楼梯平面详图、楼梯平面详图等
阅读全文>
土木网友
2026-05-07 10:10:00
钢结构网架施工图
包括结构平立面、网架上弦安装图、网架腹杆安装图、结构安装图、屋面檩条布置图等
阅读全文>
土木网友
2026-05-07 10:10:00
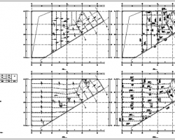
结构施工图
包括结构平面图、X向梁平法配筋图、Y向梁平法配筋图、梁平法配筋图、梁平法配筋图、结构平面图、承台平面布置图等
阅读全文>
土木网友
2026-05-07 10:10:00
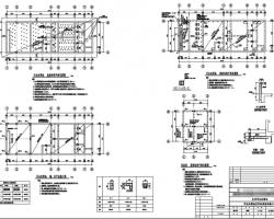
教学楼结构施工图
教学楼结构施工图包括基础配筋图、柱配筋图、板配筋图、梁配筋图、楼梯配筋图、基础平面布置图等
阅读全文>
土木网友
2026-05-07 10:10:00
车间发酵改造施工图
包括柱间撑杆布置连接图、轴线墙梁布置图、C 轴线墙梁布置图、梁布置图、屋面结构布置图、柱平面布置图、板布置图、柱平面布置图等
阅读全文>
土木网友
2026-05-07 10:10:00
框剪结构加固施工图纸
包括梁补强平面布置图、剪力墙暗柱钢板补强平面布置图、剪力墙加固及加工详图、板补强平面布置图等
阅读全文>
土木网友
2026-05-07 10:10:00
GGH钢架施工图
包括平面布置图、结构平面布置图、框架结构立面布置图、梁柱连接节点施工图、标准连接大样图、柱拼接节点施工图等
阅读全文>
土木网友
2026-05-07 10:10:00
带吊车门钢施工图
包括基础平面布置图、吊车梁柱间支撑布置图、屋面结构平面布置图、屋面檩条平面布置图、南、北立面墙架布置图、东立面墙架布置图、西立面墙架布置图等
阅读全文>
土木网友
2026-05-07 10:10:00
大楼结构施工图
大楼结构施工图包括张弦梁、挑梁平面布置图、详图、节点详图等。供大家参考!
阅读全文>
土木网友
2026-05-07 10:10:00
钢结构厂房施工图纸
钢结构厂房图纸包括建筑施工图、结构施工图、暖通施工图、给排水施工图、电气施工图等。供大家参考!
阅读全文>
土木网友
2026-05-07 10:10:00
办公楼设计图
包括桩平面布置图、基础阀板平面图、地下室剪力墙平面布置图、剪力墙平面布置图、地下室顶梁配筋图、梁配筋图、坡屋面梁配筋图等
阅读全文>
土木网友
2026-05-07 10:10:00
六层砖混住宅建筑施工图
六层砖混住宅建筑施工图包括平面图,立面图,剖面图,详图,施工图。供大家参考!
阅读全文>
土木网友
2026-05-07 10:10:00
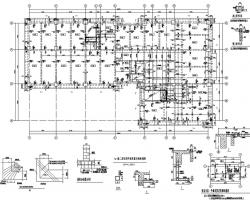
厂房结构施工图
包括柱网及柱间支撑布置图、柱脚板详图、锚栓布置图、锚栓详图、吊车梁布置图、制动系统详图、刚架详图等
阅读全文>
土木网友
2026-05-07 10:10:00
结构设计计算书
根据荷载规范:办公楼的楼梯活载取2.5 KN/m²为了设计和施工方便,1#,2#楼梯的活载由一层到顶层取同一荷载值。
阅读全文>
土木网友
2026-05-07 10:10:00
土木工程常见毕业答辩题
土木工程常见毕业答辩题,供大家参考!
阅读全文>
土木网友
2026-05-07 10:10:00
安置小区基坑支护设计
17#、18#基坑面积约3973.3m2,周长约290.0m。19#、20#、21#基坑面积约4039.22m2,周长约410.4m1。
阅读全文>
土木网友
2026-05-07 10:10:00
框架办公楼毕业设计
本工程是位于六层的框架办公楼,建筑占地面积39.0mX17.8m,内设办公室、洗手间、会议室、保安室、清洁室等。
阅读全文>
土木网友
2026-05-07 10:10:00
综合办公楼设计
本文为某科技开发公司综合办公楼设计计算书。该楼建筑面积5500平方米左右,根据建筑设计、抗震方面等的要求
阅读全文>
土木网友
2026-05-07 10:10:00
框架结构毕业设计
用地面积11700㎡,总建筑面积16325㎡,其中主营业楼面积11525㎡,设置室外停车场。 主营业楼及辅楼为四层,室内外高差为0.45m。
阅读全文>
土木网友
2026-05-07 10:10:00
框架结构计算书
详述本住宅楼的结构布置,根据建筑设计和相关规范条款给出合理的柱网图;在综合考虑了结构在各种恒载、活载、风荷载以及地震荷载作用下的情形后
阅读全文>
土木网友
2026-05-07 10:10:00
框架结构设计
该计算书主要包括八个部分:结构选型、水平力作用下的框架结构计算、竖向荷载作用下的内力计算、横向框架内力组合、截面尺寸设计、板的设计、基础设计、楼梯设计。
阅读全文>
土木网友
2026-05-07 10:10:00
中学综合办公楼框架结构设计
建筑概况:建筑面积约7153.02平方米,室内外高差450mm,楼盖及屋盖均采用现浇钢筋混凝土框架结构,楼板厚度取120mm,填充墙采用蒸压白砂砖砌块。
阅读全文>
土木网友
2026-05-07 10:10:00
某办公楼计算书
某设计院办公楼建筑面积 5000~6000m2 左右,地面以上限高28m。
阅读全文>
土木网友
2026-05-07 10:10:00
六层框架结构宿舍楼建筑毕业设计
该工程为框架结构,主体为六层,该地区抗震设防烈度为7度,第二分组,场地类别为III类场地。
阅读全文>
土木网友
2026-05-07 10:10:00
教学楼毕业设计
本工程建筑功能为公共建筑,使用年限为50年;建筑平面的横轴轴距为8.1m,纵轴轴距为5.4m和4.5m
阅读全文>
土木网友
2026-05-07 10:10:00
单层钢结构生产车间毕业设计计算书
单层钢结构生产车间毕业设计计算书,供大家参考!
阅读全文>
土木网友
2026-05-07 10:10:00
综合楼结构、施工设计
本工程结构设计使用年限为50年,结构安全等级为二级,按6度抗震设防,框架抗震等级为四级,抗震设防类别为丙类。
阅读全文>
土木网友
2026-05-07 10:10:00
结构设计计算书
某车站客运综合大楼工程,建筑设计工作已完成。总建筑面积6429.8m2。总楼层为地上7层,一层层高为4.5m,二至六层层高均为3.6m,七层层高为3.9m。
阅读全文>
土木网友
2026-05-07 10:10:00
某玻璃厂屋顶光伏工程结构计算说明
对水平倒挂玻璃及框架,可不考虑地震作用效应的组合,风荷载的组合系数ψW应取1.0(永久荷载的效应不起控制作用时)或0.6(永久荷载的效应起控制作用时)。
阅读全文>
土木网友
2026-05-07 10:10:00
结构承载力计算表格
结构承载力计算表格能够解决一些简单结构的承载能力计算,方便操作。计算准确
阅读全文>
土木网友
2026-05-07 10:10:00
钢筋混凝土单向板肋梁楼盖课程设计任务书
钢筋混凝土单向板肋梁楼盖课程设计任务书,供大家参考!
阅读全文>
土木网友
2026-05-07 10:10:00
算量小巧手2.2.25 for2006
土木工程预算好帮手,现场施工算量好帮手!
阅读全文>
土木网友
2026-05-07 10:10:00
带转换层的框支剪力墙结构设计实例
包括带转换层的框支剪力墙结构设计实例、带转换层高层建筑设计建议、高层建筑转换梁偏轴情况的抗偏梁与水平加腋
阅读全文>
土木网友
2026-05-06 10:10:00
某单位行政办公楼温度作用效应的分析
该行政办公楼由主楼、左配楼及右配楼三幢建筑组成,无地下室。主楼用连廊与左配楼、右配楼加以连接,形成一建筑组群
阅读全文>
土木网友
2026-05-06 10:10:00
解析法铁路曲线线间距计算及程序设计
根据解析几何知识, 探讨方法上理论严密, 可处理单、复曲线, 切线平行和扭转, 第二线边侧不同, 曲线偏角不同等情况下的第二线线间距( 线距) 计算问题。
阅读全文>
土木网友
2026-05-06 10:10:00
某单位行政办公楼地基基础的设计
该行政办公楼由主楼、左配楼及右配楼三幢建筑组成,无地下室,主楼用连廊与左配楼、右配楼加以连接,形成一建筑组群。总建筑面积,4.3万平方米,占地面积7300平方米。
阅读全文>
土木网友
2026-05-06 10:10:00
轻型门式钢架设计原理及计算实例
轻型钢结构工程是一个系统工程,它包括设计、加工制造和施工安装三个过程;包含的具体内容有:主结构系统、次结构系统和围护系统三大方面。
阅读全文>
土木网友
2026-05-06 10:10:00
回弹法测定砼强度计算程序
包括泵送混凝土测区混凝土强度的换算值的修正值、回弹法检测混凝土抗压强度记录等
阅读全文>
土木网友
2026-05-01 10:14:00
有限元分析理论基础
有限元模型:它是真实系统理想化的数学抽象。由一些简单形状的单元组成,单元之间通过节点连接,并承受一定载荷
阅读全文>
土木网友
2026-05-01 10:14:00
柱下独立基础底板配筋的计算
根据《砼结构设计规范》(GBJ-88),在进行柱下独立基础底板配筋计算时,考虑了砼强度等级等因素,使计算更加合理
阅读全文>
土木网友
2026-05-01 10:14:00
混凝土结构课程设计
某设计年限为50年的工业厂房,采用内框架结构,边柱为砖柱,楼盖采用钢筋砼现浇单向板肋梁楼盖。
阅读全文>
土木网友
2026-05-01 10:14:00
预应力钢筒混凝土管(PCCP)设计方法探讨
预应力钢筒混凝土管( PCCP)在输水过程中承受外荷载, 在应力场作用下产生裂缝, 影响结构的稳定性
阅读全文>
土木网友
2026-05-01 10:14:00
混凝土结构课程设计
某设计年限为50年的工业厂房,采用内框架结构,边柱为砖柱,楼盖采用钢筋砼现浇单向板肋梁楼盖,其标准层结构布置如图所示。
阅读全文>
土木网友
2026-05-01 10:14:00
某尾气脱硫系统尾气烟囱塔架施工方案
塔高60m,重约90t,本次脱硫塔准备分3段进行吊装,0~20m层重45T,采用260T汽车吊车进行分体吊装, 20~40m层重29T,采用260T汽车吊车进行整体吊装
阅读全文>
土木网友
2026-05-07 10:10:00
剪力墙结构高层住宅施工组织设计方案
外墙面:主体结构底层两侧及三层以上粘红色面砖,墙群采用光面花岗石幕墙式干挂,窗套、线脚处采用白色涂料,拱门前有14根圆柱,采用玻璃钢成品包柱。
阅读全文>
土木网友
2026-05-07 10:10:00
厂房二期扩建工程桩基施工组织设计方案
工程主体结构二层,其中一层为砼结构,二层为轻钢结构。工程桩设计采用400×400预制桩约700根,其中地面桩约400根,桩长26米
阅读全文>
土木网友
2026-05-07 10:10:00
框架剪力墙结构工程施工组织设计方案
本工程大学生单身公寓。现根据业主方要求楼改为单元住宅,公寓式住宅。
阅读全文>
土木网友
2026-05-07 10:10:00
框架结构厂房施工组织设计方案
宽27米,长384米,大跨度钢结构框架结构。新建厂房柱利用旧厂房柱加固做为新建厂房边柱,施工难度较大
阅读全文>
土木网友
2026-05-07 10:10:00
框剪高层多功能写字楼施工组织设计方案
本工程结构类型为框架-剪力墙结构,地上二十四层,地下一层,抗震烈度按7度设防,抗震等级为Ⅱ级。
阅读全文>
土木网友
2026-05-07 10:10:00
钢结构预算编制讲义
根据高度的不同,多层、高层及超高层建筑可采用以下合适的结构形式:①刚架结构,梁和柱刚性连接形成多层多跨刚架(图a),承受水平荷载
阅读全文>
土木网友
2026-05-07 10:10:00
某框架结构食堂宿舍楼工程施工组织设计
本工程功能设计为食堂宿舍,建筑面积1308m²,五层,房屋平面呈矩形,长27.35m,宽 10.55m,一层层高3.9m
阅读全文>
土木网友
2026-05-07 10:10:00
双排扣件式钢管落地脚手架施工方案
框架结构。东西向1至8轴长50.4m,南北向A至E轴宽28.8m。层高3.3m,共8层,现地面平均标高为-0.600m,屋面女儿墙高1.400m
阅读全文>
土木网友
2026-05-07 10:10:00
框筒结构施工组织设计
GCMC是一个集办公、培训、餐饮、娱乐、健身等为一体的综合性大楼,建筑物由主楼及其左右两侧的裙楼构成。
阅读全文>
土木网友
2026-05-07 10:10:00
结构工程施工组织设计方案
本工程是框架-剪力墙结构,主体的剪力墙比较少,因此,基础结构工程的混凝土在整个工程中占的比率比较大
阅读全文>
土木网友
2026-05-07 10:10:00
脚手架施工组织设计方案
脚手架搭设采用双排单立杆。立杆离结构外沿0.3m,横距为1m,纵距为1.5m,大横杆布局为1.8m.
阅读全文>
土木网友
2026-05-07 10:10:00
脚手架搭设施工方案
抗震设防烈度为6度,标准冻深0.85米,基础采用独立基础,主体结构为全现浇钢筋混凝土框架结构。
阅读全文>
土木网友
2026-05-07 10:10:00
某大厦基坑支护施工组织设计方案
拟建建筑物包括主楼和裙房,主楼地上为21~25 层,框架-剪力墙结构,裙房2 层,框架结构,均设1 层地下室,基础桩型采用大直径钻孔灌注桩。
阅读全文>
土木网友
2026-05-07 10:10:00
体育馆网架屋面工程施工组织设计方案
长81.00m,宽33.00m,地上两层,一层层高为7.00m,二层层高为11.50m,局部设看台夹层,网架上弦标高为11.90m
阅读全文>
土木网友
2026-05-07 10:10:00
钢筋自学课件
钢筋自学课件包括体验工程、新建工程建楼层、新建轴网、柱表、画柱、看量、梁的钢筋输入、梁对量、柱对量、板钢筋等
阅读全文>
土木网友
2026-05-07 10:10:00
弹性理学课件
包括张量、应力状态理论、应变状态理论、应力和应变关系、弹性力学问题的建立和一般原理、平面问题的直角坐标解答、平面问题的极坐标解答、弹性力学的能量原理等
阅读全文>
土木网友
2026-05-07 10:10:00
结构设计原理
结构设计原理包括钢筋混凝土结构的基本概念及材料的物理力学性能、结构按极限状态法设计计算的原则、受弯构件正截面承载力计算
阅读全文>
土木网友
2026-05-07 10:10:00
结构力学
包括静定结构受力分析、静定桁架受力分析、静定组合结构、静定结构总论、静定结构的位移计算静定结构温度变化时的位移计算
阅读全文>
土木网友
2026-05-07 10:10:00
建筑力学与结构课件
工程应用:低层、中高层民用建筑分类:砖砌体、石砌体、砌块砌体优缺点:能就地取材、造价低廉保温隔热;自重大、强度较低、抗裂性能差
阅读全文>
土木网友
2026-05-07 10:10:00
建筑力学全套PPT课件
使物体的机械运动状态发生改变,叫做力的运动效应或外效应。使物体的形状发生改变,叫做力的变形效应或内效应。
阅读全文>
土木网友
2026-05-07 10:10:00
砌筑工程
砌筑工程的工程量清单共分6个分项工程清单项目,即砖基础、砖砌体、砖构筑物、砌块砌体、石砌体、砖散水、地坪、地沟。
阅读全文>
土木网友
2026-05-07 10:10:00
结构力学课件完整版
包括力矩分配法、静定结构的影响线、结构动力学、力法、矩阵位移法、结构的极限荷载、位移法、渐近法、影响线及其应用、静定结构的位移计算等
阅读全文>
土木网友
2026-05-07 10:10:00
混凝土及钢筋混凝土
混凝土及钢筋混凝土包括基础知识、工程量清单编制及其计量规则、定额项目内容及其计量规则、 计价方法应用
阅读全文>
土木网友
2026-05-07 10:10:00
受轴向力影响欧拉梁动力反应分析
简述分布参数体系方程的建立、圆频率和振型的计算、振型正交性的理解、振型叠加法的建立及应用、找一算例编程并画出2~3个图。
阅读全文>
土木网友
2026-05-06 10:10:00
结构力学
力法和位移法是计算超静定结构的两种基本方法,但需要建立并求解联立方程,当结构复杂时,手算求解这项工作十分繁重。
阅读全文>
土木网友
2026-05-06 10:10:00
钢结构设计原理
钢结构原理课件,包括钢结构材料、钢结构的连接、受弯构件的计算原理、梁的设计、轴心受压构件、拉弯和压弯构件、屋盖结构
阅读全文>
土木网友
2026-05-06 10:10:00
混凝土外加剂
混凝土外加剂包括外加剂的定义及分类、混凝土减水剂的性能、外加剂的技术指标、外加剂的应用技术、外加剂的试验方法
阅读全文>
土木网友
2026-05-06 10:10:00
房屋建筑学总结
房屋建筑学总结,供大家参考!
阅读全文>
土木网友
2026-05-06 10:10:00
结构力学题库第七章 影响线
结构力学题库第七章 影响线,供大家参考!
阅读全文>
土木网友
2026-05-06 10:10:00
PKPM软件在应用中的问题解析 讲义
PKPM软件在应用中的问题解析讲义,供大家参考!
阅读全文>
土木网友
2026-05-07 10:10:00
pkpm培训资料
包括结构整体性能控制、结构的抗震设计和控制、复杂不规则结构的工程处理、多塔错层结构设计、恒载的模拟施工分析
阅读全文>
土木网友
2026-05-07 10:10:00
pkpm有声视频教程建模
pkpm有声视频教程建模进阶,关于pkpm建模的,步骤和技巧讲解。很实用。
阅读全文>
土木网友
2026-05-07 10:10:00
结构设计PKPM教程
该参数为地震作用力方向或风荷载作用方向与结构整体坐标的夹角,逆时针方向为正,如地震沿着不同方向作用,结构地震反映的大小一般也不相同
阅读全文>
土木网友
2026-05-07 10:10:00
砌体结构辅助设计软件专题讲座
砌体结构辅助设计软件专题讲座包括软件总体架构及主要功能、砌体结构体系与建模、多层砌体结构、底框-抗震墙结构
阅读全文>
土木网友
2026-05-07 10:10:00
PKPM软件在应用中的问题解析
PKPM软件在应用中的问题解析,供大家参考!
阅读全文>
土木网友
2026-05-06 10:10:00
PKPM视频
PKPM视频,供大家参考!
阅读全文>
土木网友
2026-05-06 10:10:00
建筑结构(SATWE)的总信息
本文以一栋7度区(0.1g)II类场地上的19层(含1层地下室)框架-剪力墙结构为例编写。
阅读全文>
土木网友
2026-05-06 10:10:00
pkpm讲稿
包括筏板基础配筋施工图、基础施工图演示文档、最新JCCAD用户问题及解答、PKPM计算软件2010规范版本介绍、JCCAD功能详解及答疑解惑等
阅读全文>
土木网友
2026-05-06 10:10:00
PKPM2008版结构软件入门学习-砌体篇
PKPM2008版结构软件入门学习-砌体篇,供大家参考!
阅读全文>
土木网友
2026-05-06 10:10:00
PKPM教程
PKPM教程,供大家参考!
阅读全文>
土木网友
2026-05-06 10:10:00
pkpm破解版
pkpm破解版,供大家参考!
阅读全文>
土木网友
2026-05-06 10:10:00
PKPM软件
PKPM系列软件各模块主菜单均设有[图形编辑、打印及转换]菜单,在各绘图程序中也有包含在下拉菜单中的绘图工具包。
阅读全文>
土木网友
2026-05-01 10:14:00
PKPM讲义,教程,用户手册等
非常完整的PKPM讲义,教程,用户手册,计算书,视频等等。不管不是初学者或者熟练的人,这些资料都会对你有极大地帮助。
阅读全文>
土木网友
2026-05-01 10:14:00
如何设置变形缝
在工程实践中,常会遇到不同大小、不同体型、不同层高,建在不同地质条件上的建筑物,对某些建筑物,如果不考虑温度伸缩、沉降和地震的影响,就会产生裂缝,甚至破坏
阅读全文>
土木网友
2026-05-01 10:14:00
3d3s软件门式钢架的设计全过程
刚架跨度24米,高度8米,女儿墙高度1米,柱距6米。双坡坡度0.1,横梁按两头变截面,中间等截面设计,无吊车,柱底铰接,柱子按变截面设计。
阅读全文>
土木网友
2026-05-06 10:10:00
3D3S 钢结构设计软件V10 网架网壳模块使用手册
3D3S 钢结构设计软件V10 网架网壳模块使用手册,供大家参考!
阅读全文>
土木网友
2026-05-01 10:14:00
3d3s门式刚架视频教程
3d3s门式刚架视频教程,供大家参考!
阅读全文>
土木网友
2026-04-30 10:34:00
3D3S钢结构设计软件V10
3D3S钢结构设计软件V10,供大家参考!
阅读全文>
土木网友
2026-04-30 10:34:00
3D3S 8.0软件
3D3S 8.0软件,供大家参考!
阅读全文>
土木网友
2026-04-28 10:10:00
3D教程第一讲.基础操作(1)
3D教程第一讲.基础操作,供大家参考!
阅读全文>
土木网友
2026-04-27 10:20:00
3d3s9.0.安装程序
3d3s9.0.安装程序,供大家供考!
阅读全文>
土木网友
2026-04-26 08:30:00
3D3S9.0《钢结构实体建造与绘图》快速入门——框架结构
3D3S9.0《钢结构实体建造与绘图》快速入门——框架结构,供大家参考!
阅读全文>
土木网友
2026-04-26 08:30:00
3D3S通用钢结构分析和设计软件
3D3S通用钢结构分析和设计软件包括结构数值分析基本要点、3D3S一般建模过程
阅读全文>
土木网友
2026-04-26 08:30:00
3D3S建筑膜结构功能模块使用手册
3D3S建筑膜结构功能模块使用手册,供大家参考!
阅读全文>
土木网友
2026-04-25 09:30:00
Civil3D视频教程
包括Civil3D土石坝三维设计、Civil3D 2007用户手册、Civil3D 2007官方教程、Civil3D 2006入门教程、Civil3D 2006用户手册、Civil3D视频教程等
阅读全文>
土木网友
2026-04-24 09:36:00
3d3s钢结构设计软件V10多高层模块使用手册
打开菜单对话框,鼠标放在对话框上,然后同时按住CTRL+F1,即可跳出帮助文件,用户可以通过点击对话框使对话框处于最上层
阅读全文>
土木网友
2026-04-24 09:36:00
3d 教程
包括创建和排列、键盘创建、扩展物体、旋转和缩放、综合应用、立体文字等
阅读全文>
土木网友
2026-04-23 10:36:00
max基础教程材质参数详解
max基础教程材质参数详解包括3Dmax的材质编辑器、Shader Baxic 选项组参数、Type:Shader 的种类等
阅读全文>
土木网友
2026-04-23 10:36:00
3D3S 软件计算书
包括设计依据、计算简图、总信息、荷载信息、设计验算结果等
阅读全文>
土木网友
2026-04-22 10:25:00
ansys基本过程手册
ANSYS软件具有多种有限元分析的能力,包括从简单线性静态分析到复杂的非线性瞬态动力学分析。
阅读全文>
土木网友
2026-05-06 10:10:00
ANSYS 12.0 机械与结构有限元分析从入门到精通
对ANSYS分析的基本思路、操作步骤、应用技巧进行了详细介绍,并结合典型工程应用实例详细讲述了ANSYS在机械与结构工程中的应用方法
阅读全文>
土木网友
2026-05-06 10:10:00
大桥索塔群桩基础的Ansys有限元分析
本文运用Ansys软件,对公路大桥索塔群桩基础与土体的共同作用进行了有限元分析。
阅读全文>
土木网友
2026-05-06 10:10:00
ANSYS使用问答精华
ANSYS使用问答精华,收集大部分使用者在学习使用ansys过程中遇到的问题,凝聚了大量ansys高手的经验,具有很高的学习价值。
阅读全文>
土木网友
2026-05-06 10:10:00
ANSYN课件
ANSYN课件包括有限元介绍、弹性力学基础、几何建模、平面问题三角形、平面问题三角形、加载与求解、矩形单元与空间问题、空间及轴对称问题等
阅读全文>
土木网友
2026-05-06 10:10:00
ANSYS 12.0 土木工程有限元分析从入门到精通
《ANSYS12.0土木工程有限元分析从入门到精通》首先介绍了ANSYS软件及应用ANSYS进行有限元分析的例子
阅读全文>
土木网友
2026-05-01 10:14:00
SAP2000 V9.04中文版
SAP2000是非常优秀的结构分析通用有限元软件,是结构工程师的必备工具之一,在桥梁、房屋、塔架、港航等土木工程领域中广泛应用!
阅读全文>
土木网友
2026-05-01 10:14:00
地下结构ANSYS有限元分析算例命令流
本光盘内容为《地下结构ANSYS有限元分析》算例命令流。电子文档使用方正Apabi Reader软件阅读。请安装该软件后阅读电子文档。
阅读全文>
土木网友
2026-05-01 10:14:00
ANSYS 12.0 安装图文指南
ANSYS 12.0 安装图文指南,供大家参考!
阅读全文>
土木网友
2026-05-01 10:14:00
ANSYS有限元教程经典20例
该桁架桥由型钢组成,顶梁及侧梁,桥身弦杆,底梁分别采用3 种不同型号的型钢,结构参数。桥长L=32m,桥高H=5.5m。
阅读全文>
土木网友
2026-05-01 10:14:00
1 20m跨倒三角钢管拱桁架的稳定分析
本文以单榀120m跨的倒三角钢管拱桁架为研究对象,用SAP2000分析程序研究其稳定性
阅读全文>
土木网友
2026-05-01 10:14:00
ansys与断裂力学
裂纹和瑕疵在很多结构和零部件中会出现,有时会导致严重的后果。断裂力学就是研究裂纹扩散问题的学科。
阅读全文>
土木网友
2026-05-01 10:14:00
ANSYS非线形分析指南
结构分析的定义:结构分析是有限元分析方法最常用的一个应用领域.结构这个术语是一个广义的概念,它包括土木工程结构,如桥梁和建筑物
阅读全文>
土木网友
2026-04-30 10:34:00
ANSYS优化技术在零件结构设计中的应用
通过利用ANSYS有限元优化分析功能对承压齿盘结构进行优化分析,证明用ANSYS优化分析功能实现结构优化分析的可行性,从而为其它复杂结构的优化分析提供了新的方法和依据。
阅读全文>
土木网友
2026-04-30 10:34:00
ansys名词全译
ansys名词全译,供大家参考!
阅读全文>
土木网友
2026-04-30 10:34:00
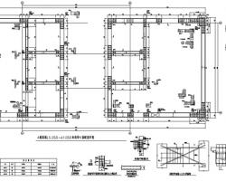
九层框架结构住宅楼地下室碳纤维加固施工图
住宅楼主体八层,局部九层,地下室二层,为钢筋混凝土框架结构,基础形式为筏板基础,填充墙为多孔砖,该建筑位于**************。
阅读全文>
土木网友
2022-10-12 16:25:55
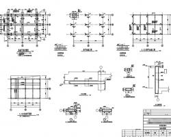
商务中心项目结构加固及拆除工程施工图
商务中心项目结构加固及拆除工程施工图包括:新增基础平面布置图、基础现状及地基加固图、基础顶~5.000框架柱加固修复平面布置图、5.000~10.000框架柱加固修复平面布置图等。
阅读全文>
土木网友
2022-10-12 16:21:08
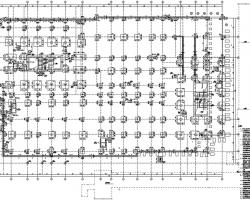
四层框架结构商业楼改造项目施工图纸(含计算书)
四层框架结构商业楼改造项目施工图纸包括:基础加固平面图、地下二层墙、柱加固平面图、地下一层墙、柱加固平面图、地下空项~6.00m墙、柱加固平面图等。
阅读全文>
土木网友
2022-10-12 16:01:59
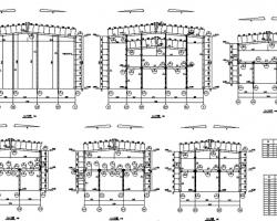
十三层办公楼功能改变结构加固改造施工图
本工程受甲方委托,对进行改造加固设计,改造后四层标高13.280m处1-2/C-F范围内,八层标高28.880m处1-2/C-F,2-7/E-F,7-8/C-F范围为档案室。
阅读全文>
土木网友
2022-07-01 17:17:30
二层砖混结构艺术楼结构加固施工图
本工程为xx师范学校艺术楼加固工程,该建筑建于19xx,地上二层,无地下室,总高度8.7m,砖混结构,以横墙承重为主的纵横墙承重结构体系,装配式钢筋混凝土楼板;
阅读全文>
土木网友
2022-07-01 17:09:54
三层砖混结构办公楼加固改造施工图
本工程加固设计使用期限:25年,到期后,重新进行的可靠性鉴定,若该结构工作正常,仍可继续延长其使用年限。本工程未经技术鉴定或设计许可,不得改变加固后结构的用途(本设计)和使用环境。
阅读全文>
土木网友
2022-07-01 17:04:32
框架结构食堂加层改造加固结构施工图
框架结构食堂加层改造加固结构施工图包括:四层模板及梁配筋图、四层板配筋图、楼梯构造说明及配筋、加建层柱定位图、屋面梁板配筋图、一层~二层柱加固图等。
阅读全文>
土木网友
2022-07-01 16:57:41
3栋宿舍楼加固结构施工图
3栋宿舍楼加固结构施工图包括:一层至二层柱加固平面图、三层至五层柱加固平面图、六层至七层柱加固平面图、二层至六层梁结构加固平面图等。
阅读全文>
土木网友
2022-07-01 16:53:24
混凝土加固节点大样图
混凝土加固节点大样图包括新增钢电梯及钢构件基础平面布置图、新增钢电梯详图、钢电梯二层平面图、钢电梯三~五层平面图、钢电梯屋面层平面图等
阅读全文>
土木网友
2022-06-22 16:12:49
6层框架结构综合楼改造加固施工图
6层框架结构综合楼改造加固施工图包括:一层结构改造平面布置图、二层结构改造平面布置图、三层结构改造平面布置图、四、五、六层结构改造平面布置图等。
阅读全文>
土木网友
2022-06-15 16:00:22
五层砖混结构教学楼加固改造施工图
本工程为xxx加固改造工程,5层砖混结构,本工程平面不规则,建筑面积约4744m 。原有基础形式为墙下条形基础。
阅读全文>
土木网友
2022-06-15 15:51:49
二层砖混结构艺术楼结构加固施工图
本工程为xx师范学校艺术楼加固工程,该建筑建于19xx,地上二层,无地下室,总高度8.7m,砖混结构,以横墙承重为主的纵横墙承重结构体系,装配式钢筋混凝土楼板;
阅读全文>
土木网友
2022-06-15 15:46:48
三层砖混结构办公楼加固改造施工图
本工程原为3层砖混结构,首层采用240砖墙mm,二~三层用180mm厚粘土实心砖承重,二、三层楼板为预制板,四层为木屋架,首层层高均为3.1m。
阅读全文>
土木网友
2022-06-15 15:41:59
框架结构食堂加层改造加固施工图
框架结构食堂加层改造加固施工图包括:四层模板及梁配筋图、配筋示意图、一层~二层柱加固图、四层模板及梁配筋图、四层板配筋图、加建层柱定位图、屋面梁板配筋图等。
阅读全文>
土木网友
2022-06-15 15:37:26
医院门诊楼综合楼加固改造结构施工图
原建筑为上部九层框架结构,局部出屋面楼梯间,建筑高度约31米;桩基础,基础梁下均匀布桩,350沉管灌注桩,桩长12.5米,桩端持力层第⑤层(中砂夹淤泥);
阅读全文>
土木网友
2022-06-02 08:53:50
栏目导航
工程网
工程图纸
工程施工
工程论文
工程知识
毕业论文
实习报告
3d模型
工作总结
CAD教程网
热门图纸
毕业设计
水利图纸
橡胶坝计算及施工图纸
建筑图纸
某五星级商务休闲酒店竣工图
结构图纸
框架剪力墙结构建筑图纸
园林图纸
园林综合图库
暖通图纸
水土保持方案报告书
路桥图纸
桥型布置图
给排水
某高层商住两用建筑给排水施工图
电气图纸
地下层机电施工图
水利毕业
水利枢纽粘土心墙坝毕业设计
建筑毕业
7度某中学学生宿舍楼毕业设计
结构毕业
教学楼毕业设计
园林毕业
某住宅区景观设计毕业论文答辩方案ppt
暖通毕业
十六层框架结构住宅楼室内采暖系统设计 45P
路桥毕业
高速公路计算设计书(毕业设计)
给排水
某城市给排水毕业设计
电气毕业
社区中心全套项目施工图纸(含建筑结构水电暖)
四层办公楼全套CAD施工图纸
某服装厂厂房综合楼毕业设计(含图纸、计算
钢结构住宅楼方案毕业设计计算书及图纸
三层综合楼框架结构毕业设计计算书及图纸
热点论文
工程知识
建筑论文
厦门市农村住宅通用图集(90户型汇编2022年版)
结构论文
山东省住建厅关于落实房屋市政工程建设单位安全生
水利论文
如何聚焦重点领域加强岗位开发?一图看懂
园林论文
园林绿化中造景理念创新思维分析
路桥论文
北京市地方标准《城市轨道交通工程设计标准》修订
电气论文
电气工程中电气自动化实践研究
造价论文
建设工程计价依据热点问题解答(2026年4月)
CAD教程
AUTOCAD滚动条设置怎么操作
施工知识
AUTOCAD——图形单位与图形边界
建筑知识
地下车库有哪些五大设计要点?
造价知识
基坑支护方案选型及成本速查表
结构知识
混凝土养护的“8个误区”
电气知识
普通照明、应急照明、事故照明系统的设计
安全文明
寒潮来袭!冬季施工安全八防请落实
市政知识
水稳层施工工艺及注意事项
合同知识
工程合同管理索赔合理性认定知识点
互动交流
微信扫码关注公众号
获取更多土木资讯