您当前位置:首页 » 水利工程 » 水利图纸 » 节水灌排

2023 水库中型灌区提灌站施工图 91P

  • 资料等级:
  • 授权方式:资料共享
  • 发布时间:2026-03-16
  • 资料类型:RAR
  • 资料大小:56 MB
  • 资料分类:水利图纸
  • 运行环境:WinXp,Win2003,WinVista,Win ;
  • 解压密码:gc5.com
2023 水库中型灌区提灌站施工图 91P
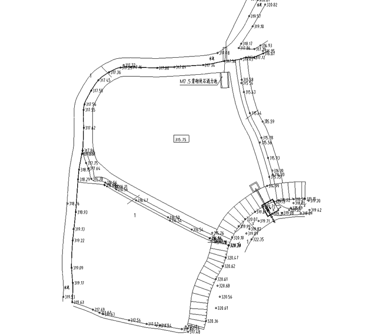
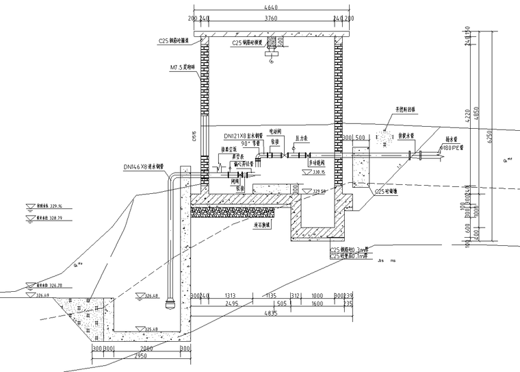
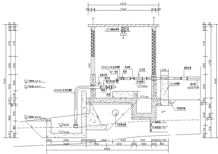
水库中型灌区续建配套与节水改造项目,本工程主要建设内容为新建泵站、蓄水池、管网铺设,根据《泵站设计标准》(GB50265-2022)规定,进水池的水下容积可按共用该进水池水泵30倍~50倍设计流量确定,本次工程进水池容积满足该条件;埋管管顶最小埋深应在耕植线或最大冻土深度以下,本工程管道管径范围为DN90~DN355,管道最小埋深为0.7m,平行管道安装间距不小于0.8m,交叉管道交叉点净间距不小于0.15m;泵房工作平台设计高程应按校核洪水位加波浪高度和0.5m的安全加高确定。
资料截图
  • 2023 水库中型灌区提灌站施工图 91P
  • 2023 水库中型灌区提灌站施工图 91P
  • 2023 水库中型灌区提灌站施工图 91P