您当前位置:首页 » 暖通工程 » 暖通图纸

万吨冷库暖通施工图

  • 资料等级:
  • 授权方式:资料共享
  • 发布时间:2026-03-31
  • 资料类型:RAR
  • 资料大小:23 MB
  • 资料分类:暖通工程
  • 运行环境:WinXp,Win2003,WinVista,Win ;
  • 解压密码:gc5.com
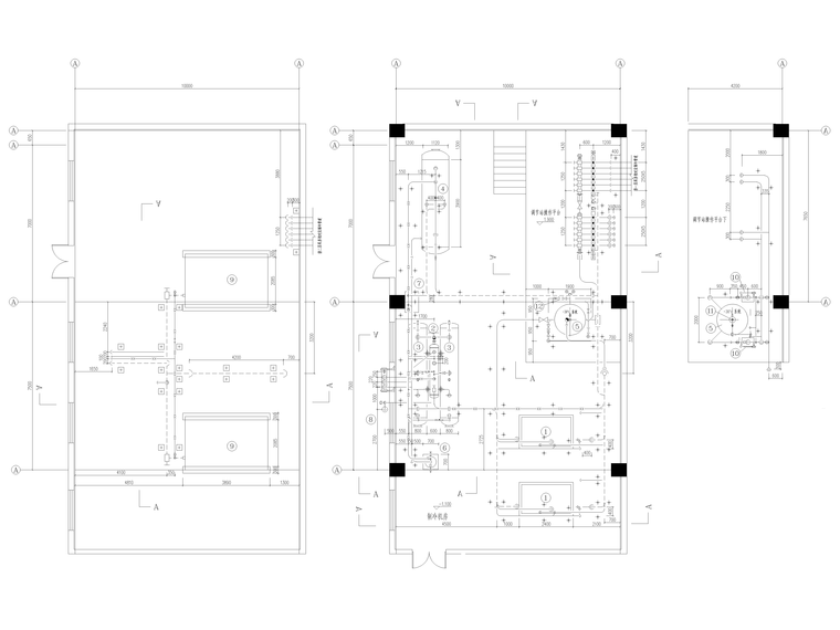
万吨冷库暖通施工图
本专业设计内容包括变配电间等附属房间的通风设计;氨制冷机房的通风设计。

本项目制冷设计的范围约10000吨低温冷藏库(以储存冻肉计)冷库设计及制冷机房设计。 1.设低温库共二层,一层五间,二层四间,共九间,总库容量约为10000吨,每日最大进货量为总库容的10%,最高进货温度-12℃,出货温度-22℃,冷藏时间24小时
资料截图
  • 万吨冷库暖通施工图
  • 万吨冷库暖通施工图