您当前位置:首页 » 暖通工程 » 暖通图纸

江苏某化妆品生产厂房洁净空调系统施工图

  • 资料等级:
  • 授权方式:资料共享
  • 发布时间:2026-03-31
  • 资料类型:RAR
  • 资料大小:6.72 MB
  • 资料分类:暖通工程
  • 运行环境:WinXp,Win2003,WinVista,Win ;
  • 解压密码:gc5.com
江苏某化妆品生产厂房洁净空调系统施工图
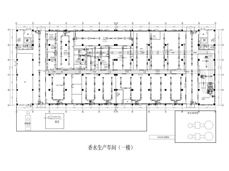
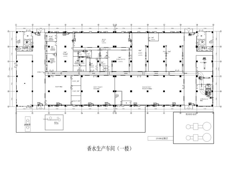
本工程为某化妆品生产厂房洁净空调系统施工图;此生产车间为1~3F,共3层,设计范围为1~3F洁净厂房系统设计。
图纸包括:
空调风系统,水系统,空调系统设备配电图,电力单线图,纯水系统图,空压系统图,暖通系统流程图,安装大样图,
资料截图
  • 江苏某化妆品生产厂房洁净空调系统施工图
  • 江苏某化妆品生产厂房洁净空调系统施工图