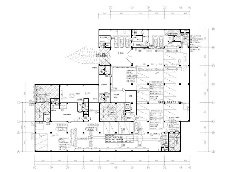
本工程为中心卫生院迁建项目1#住院部、门诊楼,2#电气设备用房,3#液氧站;其中1#住院部、门诊楼建筑面积15673.9平方米,建筑高度23.9米,地上共层,地上建筑面积12645.3平方米,地下1层,地下建筑面积3028.6平方米;2#电气设备用房建筑面积159.1平方米,地上1层,建筑高度5米;3#液氧站建筑面积90平方米,地上1层,建筑高度为5米,本工程为二类多层公共建筑。
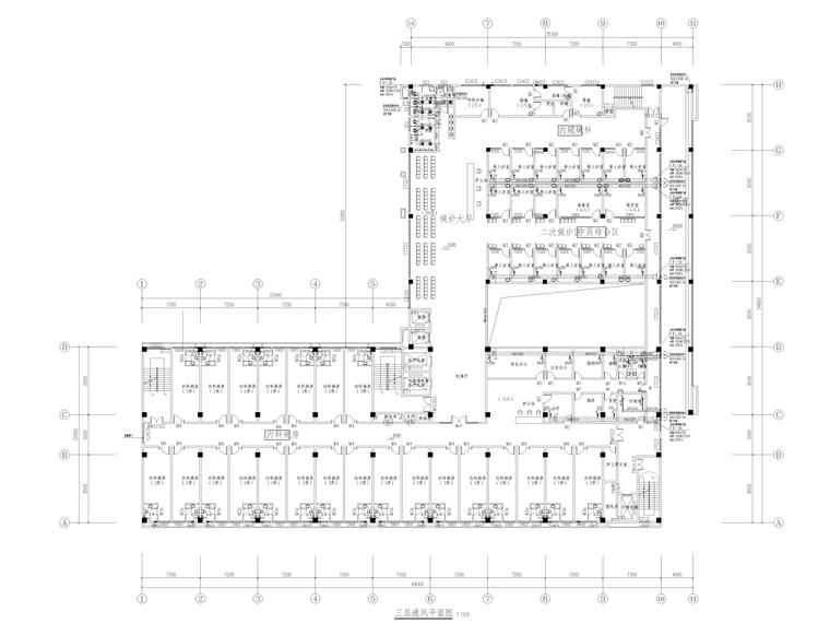
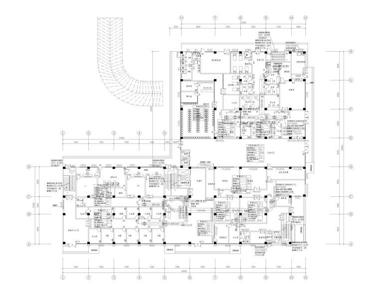
2、设计内容:防排烟系统;地下车库通风排烟系统;水泵房平时通风系统;设备机房通风系统。




RAR