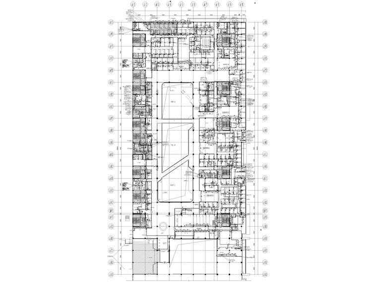
本次设计将原6层商业改造为口腔医院,且作为医疗性质使用。原建筑情况:原建筑为地上6层,地下1层,建筑高度41.5m;原建筑总建筑面积:197173.87平米;防火设计建筑分类一类,耐火一级,地下室耐火等级为一级。本次设计改造情况:本次设计改造范围为该建筑第6层部分区域;改造建筑面积:12280平米(包含连廊、第6层电梯厅、屋顶机房);施工图区域层高:6m,吊顶后净高3.1m。
2、设计内容: 本工程的通风、空调及防、排烟系统设计。




RAR