首页
知识
图纸
方案
全部
建筑
水利
结构
园林
水利工程
建筑工程
结构工程
路桥工程
园林工程
暖通工程
环保工程
给排水工程
岩土工程
电气工程
工程造价
CAD教程
工程知识
工程监理
装修装饰
节能工程
工程测绘
工程安全
论文写作
3D模型
实习报告
工程图纸
施工方案
工作总结
工程论文
毕业设计
热门
分类
更多 >
二层别墅图纸
三层别墅图纸
四层别墅图纸
独栋别墅图纸
农村别墅图纸
联排别墅图纸
钢结构别墅图纸
中式别墅图纸
欧式别墅图纸
现代别墅图纸
独院别墅图纸
独栋别墅图纸
仿古别墅图纸
您当前位置:
首页
»
建筑工程
»
建筑图纸
»
别墅图纸
别墅图纸
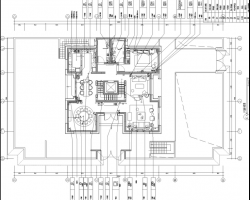
私人住宅施工图
此文件为某住宅施工图,包括建筑平面、立面、剖面、大样等。……
阅读全文>
土木网友
2026-05-13
别墅施工图
别墅施工图,包括平面、立面、剖面、及各大样图.供大家参考! ……
阅读全文>
土木网友
2026-05-13
某带架空层别墅结构设计图
此文件为某带架空层别墅结构设计图,其中包括结构设计说明、基础平面图、结构平面图、梁配筋图、架空层结构平面图、楼梯节点详图……
阅读全文>
土木网友
2026-05-13
某D3型别墅建筑结构图
此文件为某D3型别墅建筑结构图,立面图、剖面图、平面图、结构平面图、基础平面图共6张图纸,12个节点。……
阅读全文>
土木网友
2026-05-13
某砖混结构小区小别墅建筑结构图
此文件为某砖混结构小区小别墅建筑结构图,其中包括小区小别墅,室内外高差0.450m。本工程为砖混结构,工程结构设计使用年限50年。……
阅读全文>
土木网友
2026-05-13
某砖混结构三层欧式别墅建筑结构图
此文件为某砖混结构三层欧式别墅建筑结构图,本项目为别墅,依据现行国家标准规范规程进行设计,本工程设计使用年限为50年。……
阅读全文>
土木网友
2026-05-13
某三层砖混结构别墅建筑结构施工图
此文件为某三层砖混结构别墅建筑结构图,本工程采用砖混结构.结构安全等级为二级,合理使用年限50年。楼盖结构_采用现浇钢筋混凝土楼盖……
阅读全文>
土木网友
2026-05-13
某三层独立基础框架别墅楼建筑结构施工图
此文件为某三层独立基础框架别墅楼建筑结构图,其中包括楼梯平面图、柱子平面布置图、结构平面图、剖面图、TB图、PTL图、LL图……
阅读全文>
土木网友
2026-05-13
三层别墅建筑结构施工图
此文件为某三层别墅建筑结构图,其中包括平面布置图、梁平面配筋图、板平面配筋图、楼梯结构大样、基础大样详图、楼梯表……
阅读全文>
土木网友
2026-05-13
某六层商住楼建筑结构施工图
此文件为某六层商住楼建筑结构图,其中包括基础板布置平面图、标准层平面图、屋面平面图、基础梁布置图、正立面图……
阅读全文>
土木网友
2026-05-13
某两层砌体别墅结构设计图
此文件为某两层砌体别墅结构设计图,其中包括基础平面图、梁平面布置图、屋面梁平面布置图、板配筋平面图、屋面板配筋平面图共六张图纸。……
阅读全文>
土木网友
2026-05-13
某两层框架别墅结构设计图
此文件为某两层框架别墅结构设计图,其中包括基础平面及详图、框架柱平面配筋图、结构平面布置图、梁平面配筋图……
阅读全文>
土木网友
2026-05-13
某框架结构别墅楼建筑结构图
此文件为某框架结构别墅楼建筑结构图,其中包括底层结构平面图、二层结构平面图、三层结构平面图、屋顶层结构平面图、楼梯剖面图共5张图纸。……
阅读全文>
土木网友
2026-05-13
某二层框架结构独立基础别墅结构设计图
此文件为某二层框架结构独立基础别墅结构设计图,本子项工程为1栋2层别墅,总高度为6.688米,结构型式为现浇钢筋混凝土框架结构……
阅读全文>
土木网友
2026-05-13
某二层钢结构小别墅结构设计图
其中包括设计说明、二层结构平面图、柱布置平面图、阁楼层结构平面图、二层配筋平面图、屋面梁、板结构平面图、阁楼层配筋平面图共9张图纸。……
阅读全文>
土木网友
2026-05-13
别墅建筑结构施工图
此文件为某B-1型别墅建筑结构图,其中包括平面图、剖面图、结构平面图、TB图共1张图纸。……
阅读全文>
土木网友
2026-05-13
某别墅方案设计图
某别墅方案设计图包括地下室平面图、平面图、屋顶平面图、立面图、节点大样等.供大家参考! ……
阅读全文>
土木网友
2026-05-13
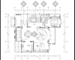
建筑装饰设计图纸
包括原始结构图、原始结构尺寸图、墙体拆除图、墙体新建图、面积统计图、地面铺装图、平面布置图、天棚布置图、天棚尺寸图等……
阅读全文>
土木网友
2026-05-13
二层园林别墅设计图
此文件为二层园林别墅设计图,包括建筑设计说明,建筑设计说明,用料做法表,门窗表,地下层平面图,采光井剖面图,防水详图,疏散爬梯详图,平面位置图等,供各位参考……
阅读全文>
土木网友
2026-05-13
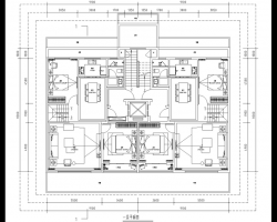
独栋别墅施工图
独栋别墅施工图包括屋面平面图、剖面图、大样图、门窗大样、门窗表、立面图、平面图等……
阅读全文>
土木网友
2026-05-13
首页
上一页
1
2
3
4
5
下一页
尾页
栏目导航
工程网
工程图纸
工程施工
工程论文
工程知识
毕业论文
实习报告
3d模型
工作总结
CAD教程网
热门图纸
毕业设计
水利图纸
2024 航道整治工程施工图 553P
建筑图纸
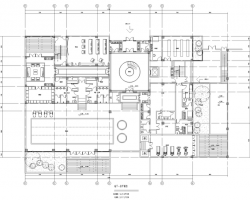
某五星级商务休闲酒店竣工图
结构图纸
框架剪力墙结构建筑图纸
园林图纸
园林综合图库
暖通图纸
水土保持方案报告书
路桥图纸
桥型布置图
给排水
某高层商住两用建筑给排水施工图
电气图纸
地下层机电施工图
水利毕业
水利枢纽粘土心墙坝毕业设计
建筑毕业
7度某中学学生宿舍楼毕业设计
结构毕业
教学楼毕业设计
园林毕业
某住宅区景观设计毕业论文答辩方案ppt
暖通毕业
十六层框架结构住宅楼室内采暖系统设计 45P
路桥毕业
高速公路计算设计书(毕业设计)
给排水
某城市给排水毕业设计
电气毕业
社区中心全套项目施工图纸(含建筑结构水电暖)
四层办公楼全套CAD施工图纸
道路及桥梁专业毕业设计全套
路桥专业毕业设计(全套)
地铁站主体结构毕业设计(含开题报告、任务
热点论文
工程知识
建筑论文
四川省房屋建筑和市政工程施工图审查疑难问题解析
结构论文
山东省住建厅关于落实房屋市政工程建设单位安全生
水利论文
如何聚焦重点领域加强岗位开发?一图看懂
园林论文
园林绿化中造景理念创新思维分析
路桥论文
北京市地方标准《城市轨道交通工程设计标准》修订
电气论文
电气工程中电气自动化实践研究
造价论文
建设工程计价依据热点问题解答(2026年4月)
CAD教程
AUTOCAD滚动条设置怎么操作
施工知识
AUTOCAD——图形单位与图形边界
建筑知识
地下车库有哪些五大设计要点?
造价知识
基坑支护方案选型及成本速查表
结构知识
混凝土养护的“8个误区”
电气知识
普通照明、应急照明、事故照明系统的设计
安全文明
寒潮来袭!冬季施工安全八防请落实
市政知识
水稳层施工工艺及注意事项
合同知识
工程合同管理索赔合理性认定知识点
互动交流
微信扫码关注公众号
获取更多土木资讯