您当前位置:首页 » 结构工程 » 结构图纸 » 钢结构

2025 剪力墙+框支剪力墙高层住宅结构施工图

  • 资料等级:
  • 授权方式:资料共享
  • 发布时间:2026-04-21
  • 资料类型:RAR
  • 资料大小:111 MB
  • 资料分类:结构图纸
  • 运行环境:WinXp,Win2003,WinVista,Win ;
  • 解压密码:gc5.com
2025 剪力墙+框支剪力墙高层住宅结构施工图
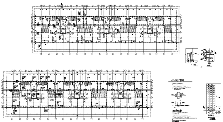
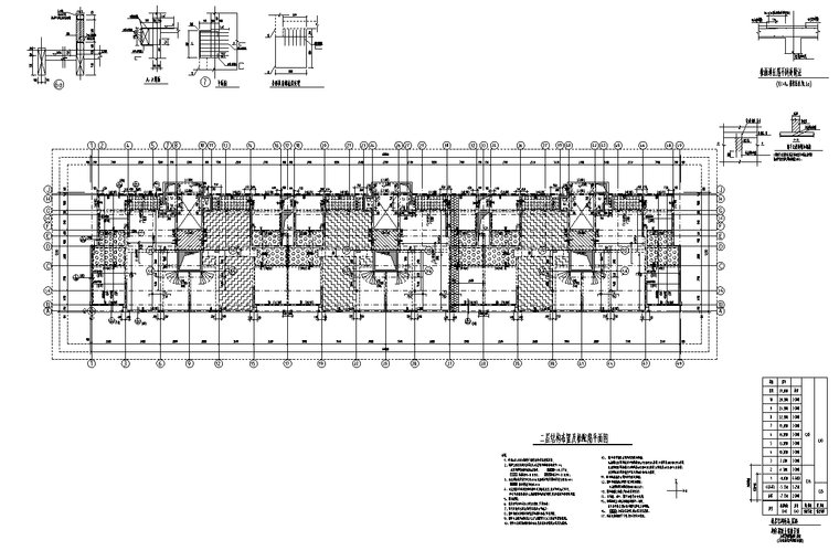
上部结构体系:住宅:剪力墙结构、部分框支剪力墙结构(8#、10#、11#)。附属服务用房、地下室:框架结构。
资料截图
  • 2025 剪力墙+框支剪力墙高层住宅结构施工图
  • 2025 剪力墙+框支剪力墙高层住宅结构施工图
  • 2025 剪力墙+框支剪力墙高层住宅结构施工图