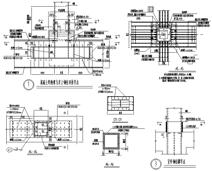
本工程地下室有人防,地下室一层为甲类核6常6级人防,具体位置见相关结构平面图。
本工程的研发楼(研发A、研发B)相对设计标高士0.000相当于绝对标高5.210m,中试验证实验楼(厂房/恒温间、设备楼,实验楼)相对设计标高士0.000相当于绝对标高5.510m,绝对标高为吴淞高程。
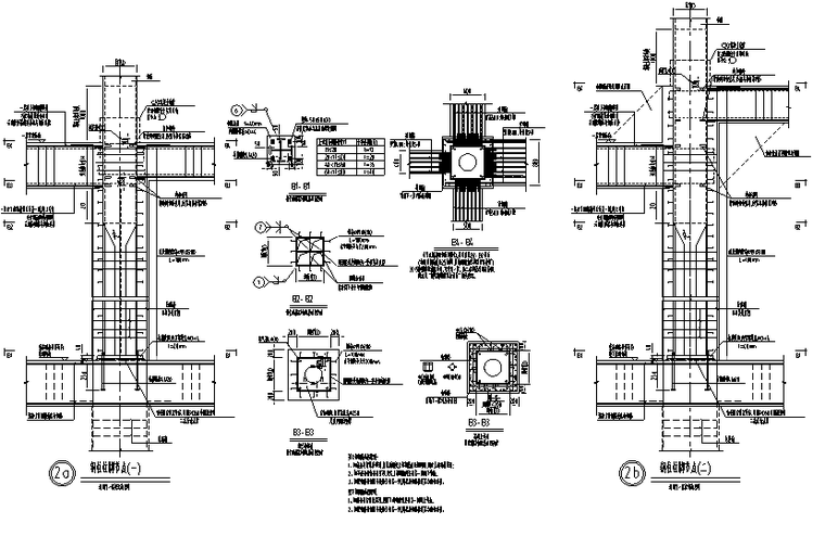
本工程抗震设防烈度7度,设计基本地震加速度0.10g,设计地震分组第二组,场地类别V类,场地特征周期0.90s。本工程建筑抗震设防标准如表2.4所示,施工单位应按构造措施对应的抗震等级进行施工。
地基概述(摘自本工程岩土工程勘察报告)
本工程的拟建场地属于对抗震不利地段:地基土对钢筋混凝土微腐蚀性,地基土无液化。







