
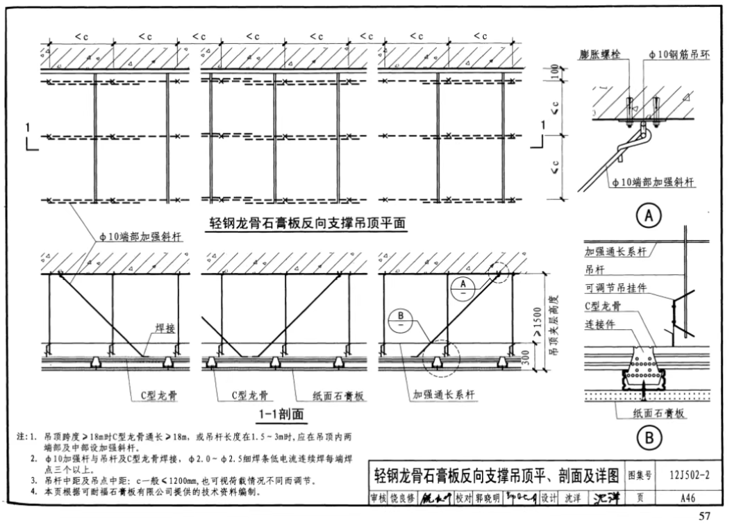
笔者在参与某个装修项目投标时,图纸要求吊杆大于1.5米时设置反向支撑。秉着打破砂锅问到底的态度,查询了相关技术规范。其中《建筑装饰装修工程质量验收规范》GB 50210-2013提到:第7.1.11当吊杆长度大于1.5m时,应设置反支撑;第7.1.12吊杆长度大于2.5m时,应设置钢结构转换层。由于《验收规范》只是语言描述了特定情况下必须设置反支撑与转换层,没有描述具体做法。笔者查阅了相关图集,在12J502中找到了两种反向支撑做法供大家参考(图集截图放在文章结尾),但没有转换层的具体做法。反支撑:为防止吊杆摆动而设置的刚性支撑构件,通常采用角钢、槽钢等,呈三角形或人字形布置。转换层:当吊杆长度超过2.5m时,需要设置一个钢骨架层,将吊杆与转换层连接,再通过转换层与结构顶板连接,相当于中间过渡层。根据TY01-31-2015《房屋建筑与装饰工程消耗量定额》规定,吊杆长度为不上人0.6米、上人1.4米,均未超过1.5米。因此可以判定:定额中的吊杆子目不含反支撑与转换层的费用,在实际组价中需要单独计算。面对反支撑与转换层的费用问题,不同合同类型的处理方式有所不同:
- 费率标合同:施工过程中做好反支撑与转换层的做法确认工作,便于竣工结算时计算工程量进行组价。
- 固定单价合同(清单项目特征未描述“反向支撑和转换层”):属于清单漏项,施工过程中要做好做法确认工作,便于竣工结算重新组价。
- 固定单价合同(清单项目特征已描述“反向支撑和转换层”):在投标阶段要根据图纸吊杆高度计算相应的工程量,在投标组价时考虑相应费用。
至于具体套用哪个定额子目,图纸做法不同,大家的理解也不尽相同,在此不做统一推荐。建议根据项目所在地定额规则和自身成本测算,合理确定组价方案。
12J502中反向支撑做法