您当前位置:首页 » 园林工程 » 园林图纸 » 园林绿化及施工

广场绿化停车场景观改造CAD施工图

  • 资料等级:
  • 授权方式:资料共享
  • 发布时间:2026-04-02
  • 资料类型:RAR
  • 资料大小:88 MB
  • 资料分类:园林图纸
  • 运行环境:WinXp,Win2003,WinVista,Win ;
  • 解压密码:gc5.com
广场绿化停车场景观改造CAD施工图
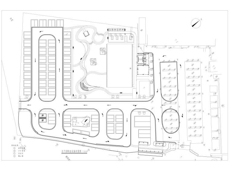
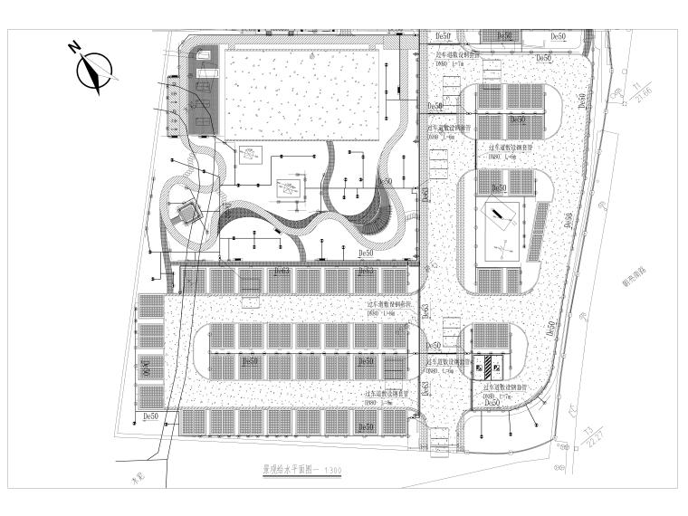
目录:景观电气施工图、建设工程地形图、景观给排水平面图、防坠网详图、雨水口大样、设计说明、总平面铺装、配套设施平面、围墙详图、四方亭详图、弧形花廊详图、自行车棚、高压电杆护栏详图、通用详图、绿化种植设计、植物配置平面图等。
资料截图
  • 广场绿化停车场景观改造CAD施工图
  • 广场绿化停车场景观改造CAD施工图
  • 广场绿化停车场景观改造CAD施工图