您当前位置:首页 » 园林工程 » 园林图纸 » 园林建筑及相关

知名企业景观示范区CAD施工图全套

  • 资料等级:
  • 授权方式:资料共享
  • 发布时间:2026-04-02
  • 资料类型:RAR
  • 资料大小:34 MB
  • 资料分类:园林图纸
  • 运行环境:WinXp,Win2003,WinVista,Win ;
  • 解压密码:gc5.com
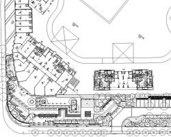
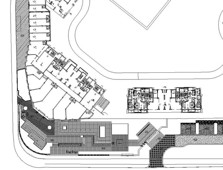
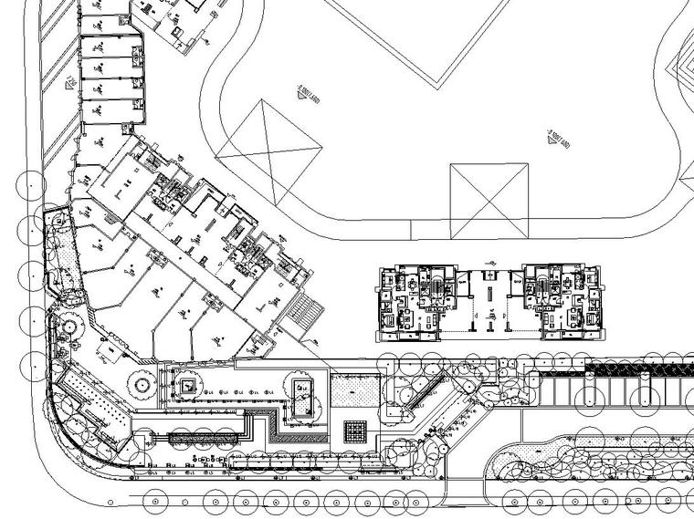
知名企业景观示范区CAD施工图全套
图纸包含:景观施工图、景观施工图、铺装材料表、铺装设计平面图、灯具及家具意向图、灯具及家具意向图、乔木种植平面图、灌木种植平面图、PAVER详图、主入口大门、次入口大门、 围墙&LOGO墙、等共110页。
资料截图
  • 知名企业景观示范区CAD施工图全套
  • 知名企业景观示范区CAD施工图全套
  • 知名企业景观示范区CAD施工图全套