您当前位置:首页 » 园林工程 » 园林图纸 » 园林建筑及相关

高端私人别墅景观细节扩初设计方案

  • 资料等级:
  • 授权方式:资料共享
  • 发布时间:2026-04-02
  • 资料类型:RAR
  • 资料大小:8.3 MB
  • 资料分类:园林图纸
  • 运行环境:WinXp,Win2003,WinVista,Win ;
  • 解压密码:gc5.com
高端私人别墅景观细节扩初设计方案
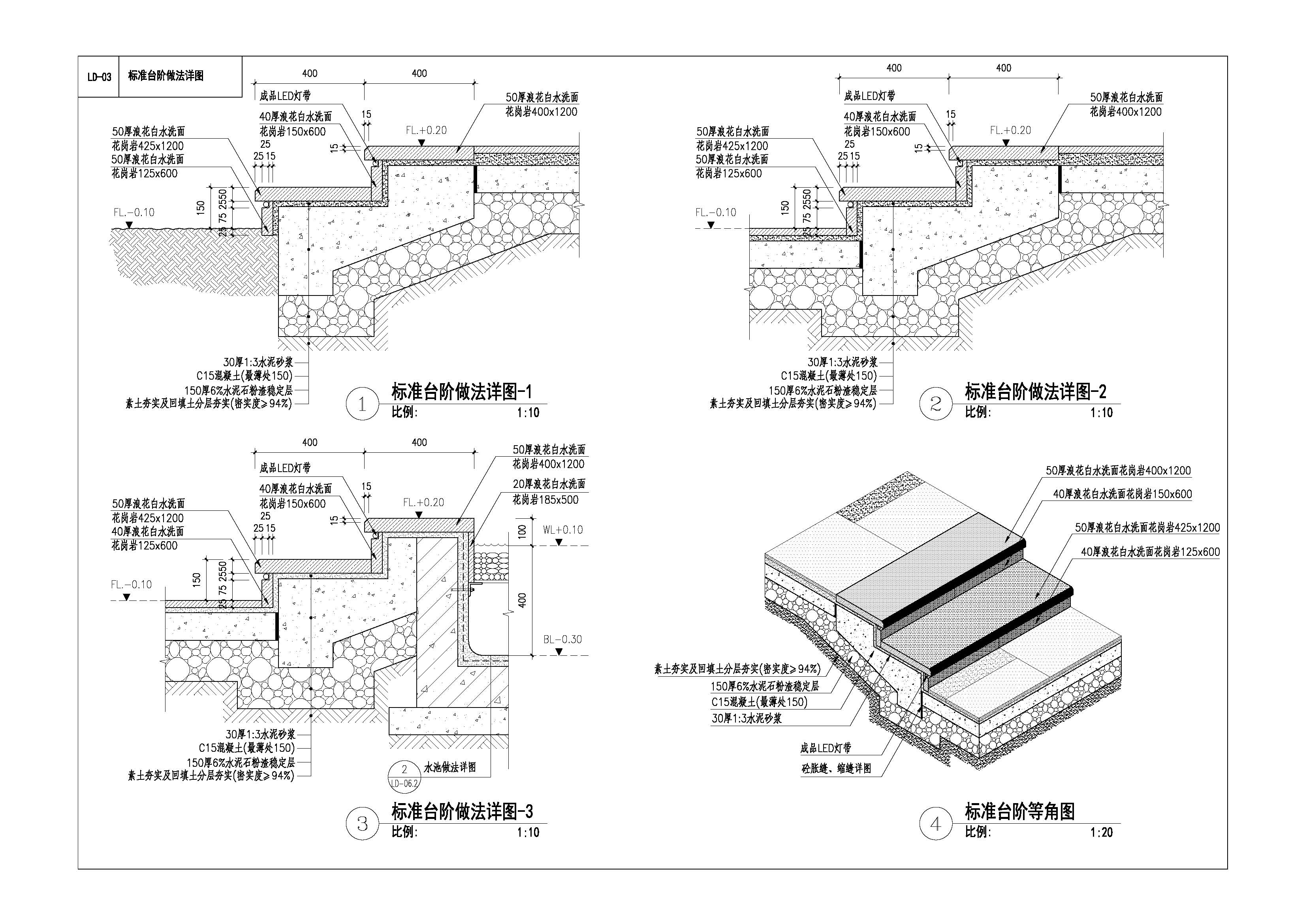
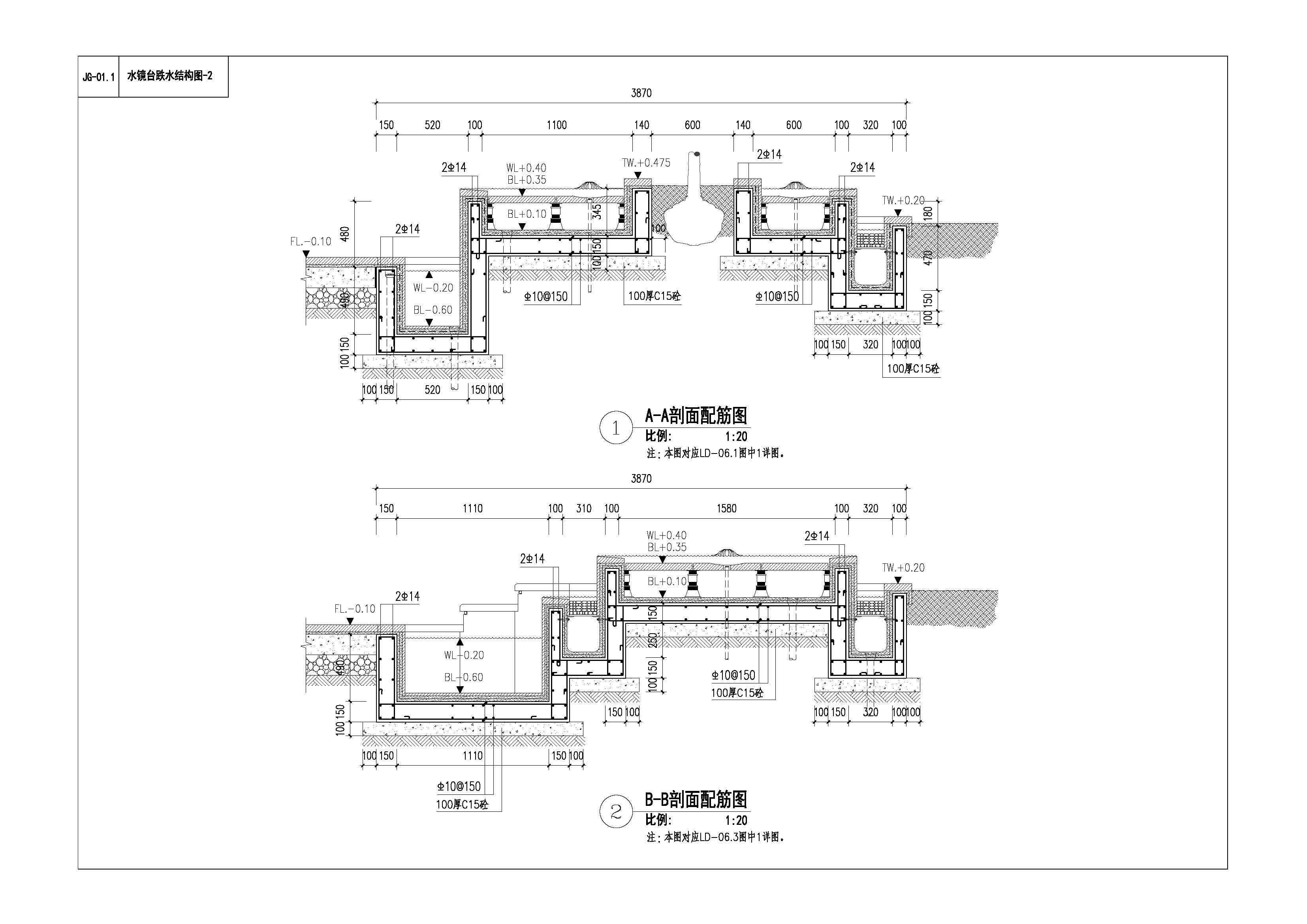
高端私人别墅景观细节扩初设计方案(独家原创) 目录:一、索引图 二、竖向设计 三、跌水结构图 四、标准伸缩缝图 五、标准台阶做法详图 六、雕塑小品详图,像素是3309*2339,共17张图纸。
资料截图
  • 高端私人别墅景观细节扩初设计方案
  • 高端私人别墅景观细节扩初设计方案
  • 高端私人别墅景观细节扩初设计方案