您当前位置:首页 » 园林工程 » 园林图纸 » 园林建筑及相关

欧式别墅售楼处景观细节施工扩初设计方案

  • 资料等级:
  • 授权方式:资料共享
  • 发布时间:2026-04-02
  • 资料类型:RAR
  • 资料大小:13.6 MB
  • 资料分类:园林图纸
  • 运行环境:WinXp,Win2003,WinVista,Win ;
  • 解压密码:gc5.com
欧式别墅售楼处景观细节施工扩初设计方案
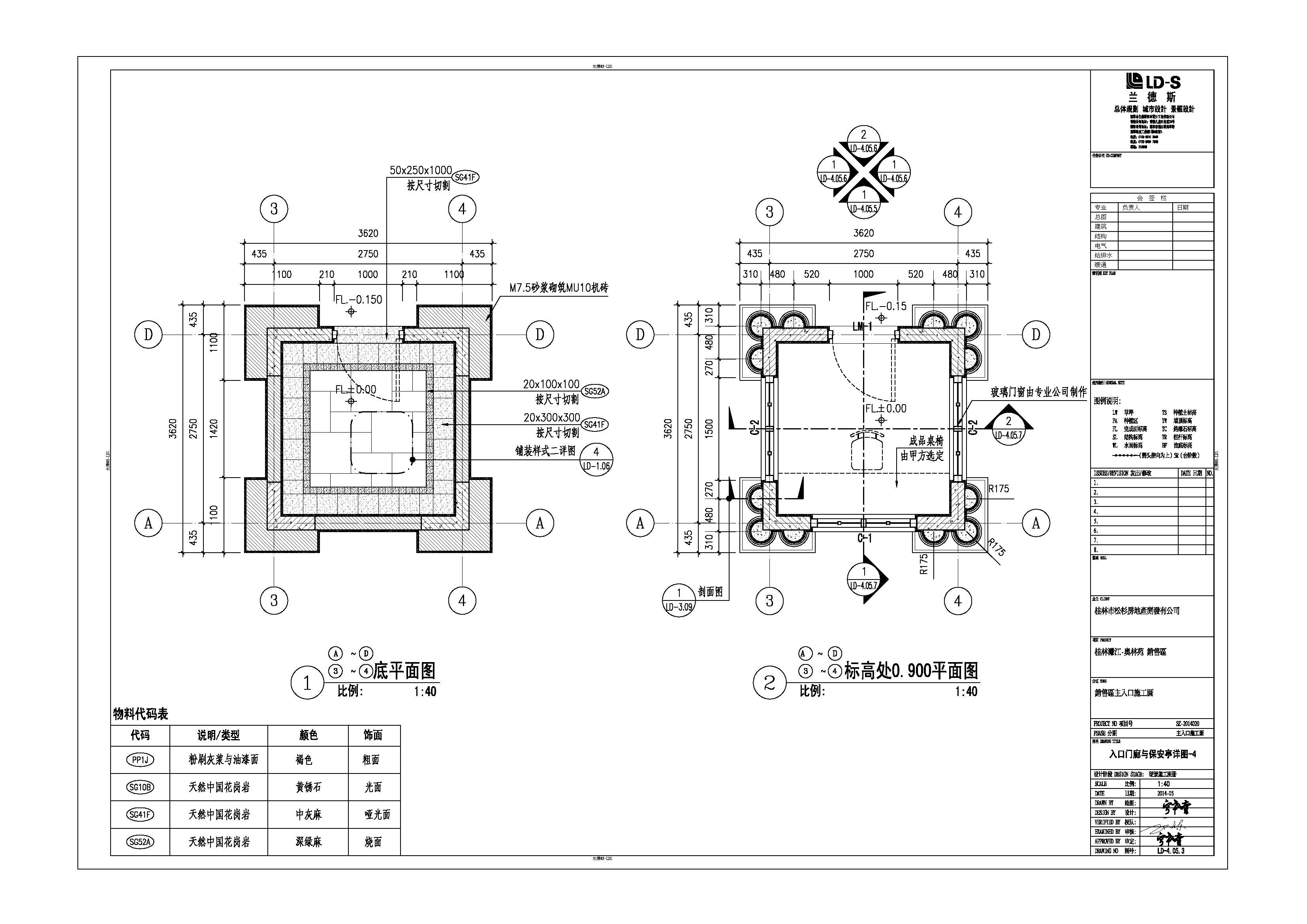
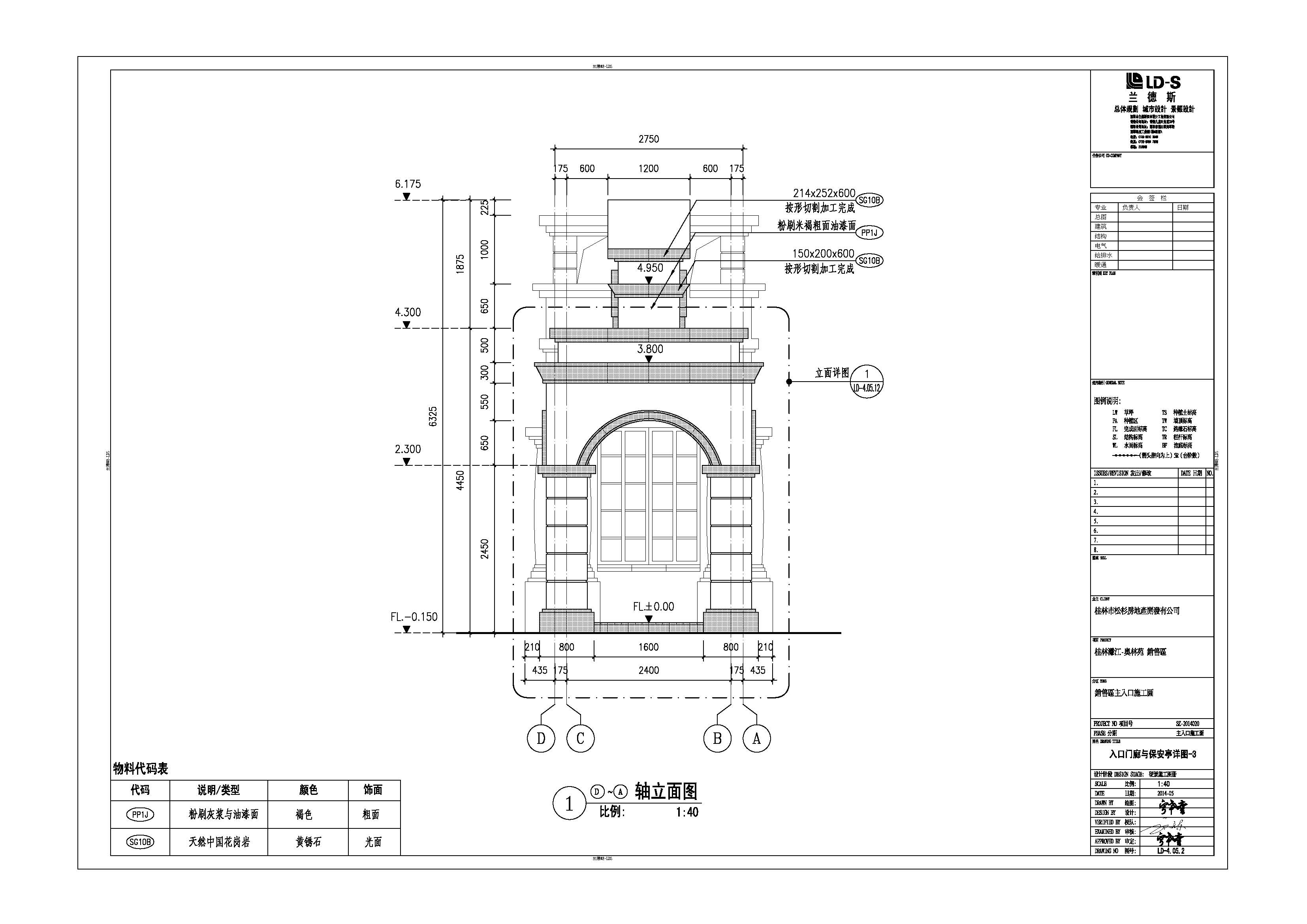
欧式别墅售楼处景观细节施工扩初设计方案(独家原创) 目录:欧式门廊详图,保安亭施工详图,大门施工详图,材料详图,立面详图,像素是3309*2339,共18张图纸。
资料截图
  • 欧式别墅售楼处景观细节施工扩初设计方案
  • 欧式别墅售楼处景观细节施工扩初设计方案
  • 欧式别墅售楼处景观细节施工扩初设计方案