您当前位置:首页 » 园林工程 » 园林图纸 » 园林建筑及相关

下沉庭院廊架水景节点详图施工图

  • 资料等级:
  • 授权方式:资料共享
  • 发布时间:2026-04-02
  • 资料类型:RAR
  • 资料大小:253 MB
  • 资料分类:园林图纸
  • 运行环境:WinXp,Win2003,WinVista,Win ;
  • 解压密码:gc5.com
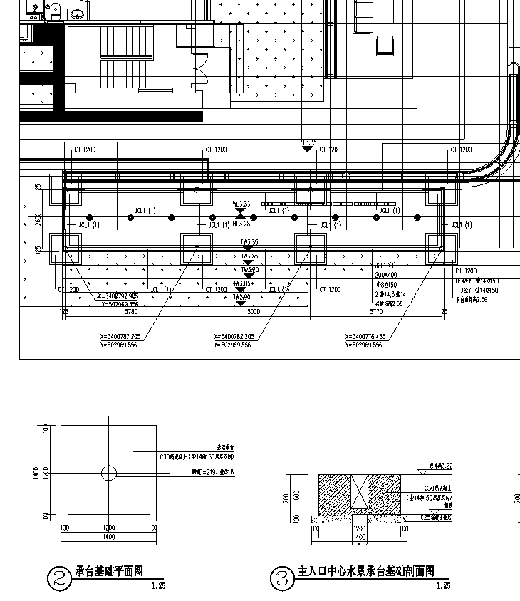
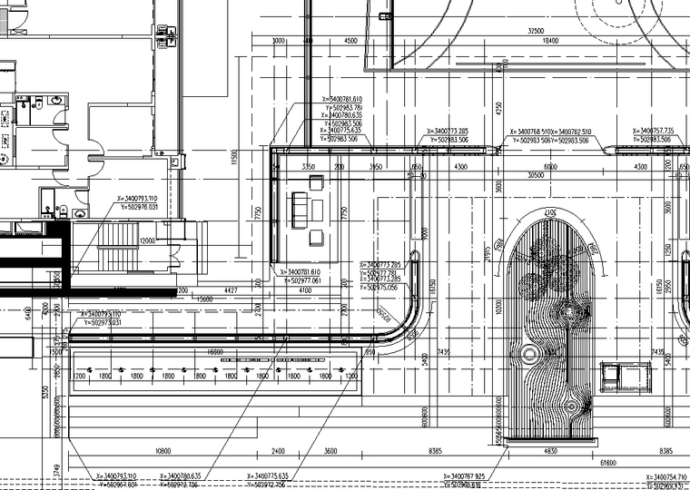
下沉庭院廊架水景节点详图施工图
下沉庭院廊架水景节点详图施工图
设计方案创意独特,制作非常详细,可以在同类项目中做参考或适当修改后使用
资料截图
  • 下沉庭院廊架水景节点详图施工图
  • 下沉庭院廊架水景节点详图施工图
  • 下沉庭院廊架水景节点详图施工图
  • 下沉庭院廊架水景节点详图施工图