您当前位置:首页 » 园林工程 » 园林图纸 » 道路地面铺装

社区公园CAD施工图 2024

  • 资料等级:
  • 授权方式:资料共享
  • 发布时间:2026-04-02
  • 资料类型:RAR
  • 资料大小:65 MB
  • 资料分类:园林图纸
  • 运行环境:WinXp,Win2003,WinVista,Win ;
  • 解压密码:gc5.com
社区公园CAD施工图 2024
社区公园CAD施工图 2024
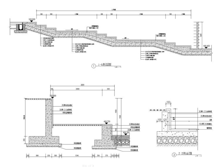
包含:平面图、详图
资料截图
  • 社区公园CAD施工图 2024
  • 社区公园CAD施工图 2024
  • 社区公园CAD施工图 2024