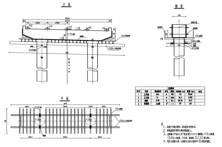
本项目主线桥879m/4座、匝道桥3055m/16座,本项目共有桥墩盖梁115片、中系梁36片,均为钢筋混凝土浇筑,混凝土强度为C35,最大墩高14.5m。综合考虑质量、安全、经济,经方案比选,盖梁模板采用定型钢模;工人上下作业采用安全爬梯;作业平台在支架法、抱箍法、穿心棒法中,选择了穿心棒法施工。
本项目共有桥墩盖梁115片、中系梁36片,均为钢筋混凝土浇筑,混凝土强度为C35,最大墩高14.5m。综合考虑质量、安全、经济,经方案比选:工人上下作业采用安全爬梯;盖梁模板采用定型钢模;作业平台在支架法、抱箍法、穿心棒法中,选择了穿心棒法施工。






