您当前位置:首页 » 建筑工程 » 建筑图纸 » 建筑户型平面图

1梯2户高层住宅户型施工图

  • 资料等级:
  • 授权方式:资料共享
  • 发布时间:2026-04-07
  • 资料类型:RAR
  • 资料大小:7.5 MB
  • 资料分类:建筑图纸
  • 运行环境:WinXp,Win2003,WinVista,Win ;
  • 解压密码:gc5.com
1梯2户高层住宅户型施工图
1梯2户高层住宅户型施工图
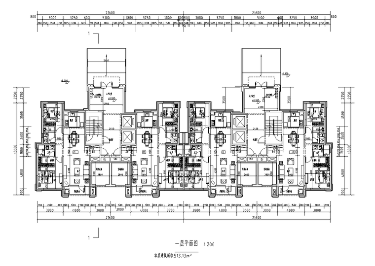
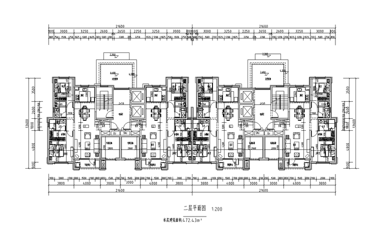
目录:各层住宅平面图、立面图、剖面图、楼梯详图、墙身大样图。
资料截图
  • 1梯2户高层住宅户型施工图
  • 1梯2户高层住宅户型施工图
  • 1梯2户高层住宅户型施工图