您当前位置:首页 » 结构工程 » 结构图纸 » 混凝土结构

高层办公塔楼+裙房商业结构施工图

  • 资料等级:
  • 授权方式:资料共享
  • 发布时间:2026-03-24
  • 资料类型:RAR
  • 资料大小:86 MB
  • 资料分类:结构图纸
  • 运行环境:WinXp,Win2003,WinVista,Win ;
  • 解压密码:gc5.com
高层办公塔楼+裙房商业结构施工图
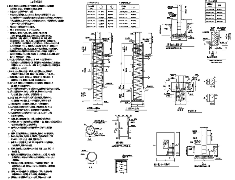
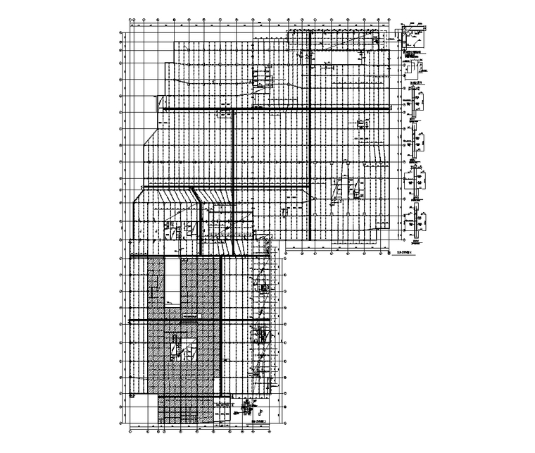
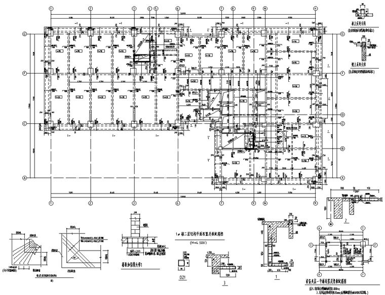
本项目单体包含3栋高层塔楼、裙房商业及车库,1#楼为板式高层办公,73.8m,框剪结构;2#楼为方形高层塔楼,98.4m,框架核心筒结构;3栋楼为两栋10层方形塔楼及裙房,42m,框剪结构。
资料截图
  • 高层办公塔楼+裙房商业结构施工图
  • 高层办公塔楼+裙房商业结构施工图
  • 高层办公塔楼+裙房商业结构施工图