您当前位置:首页 » 结构工程 » 结构图纸 » 混凝土结构

2栋框架核心筒高层办公楼及裙房商业施工图

  • 资料等级:
  • 授权方式:资料共享
  • 发布时间:2026-03-24
  • 资料类型:RAR
  • 资料大小:35 MB
  • 资料分类:结构图纸
  • 运行环境:WinXp,Win2003,WinVista,Win ;
  • 解压密码:gc5.com
2栋框架核心筒高层办公楼及裙房商业施工图
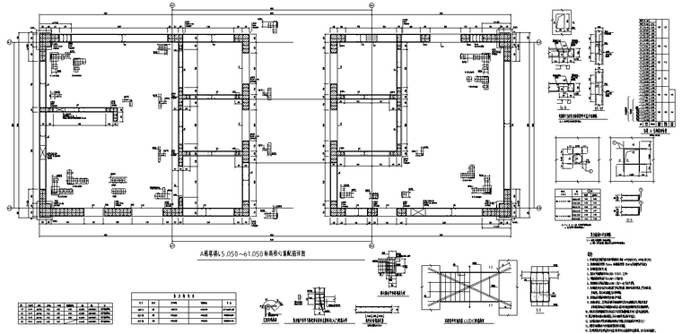
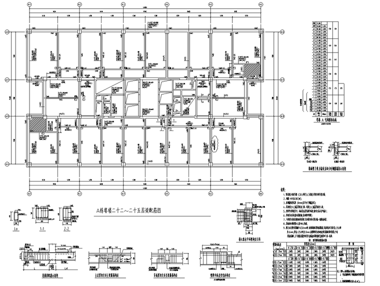
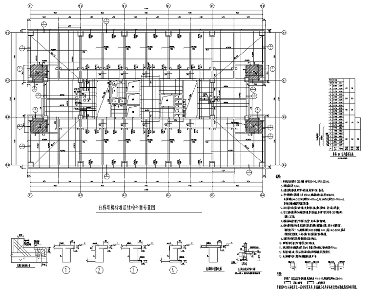
由两栋办公楼和裙房商业组成,主要功能为办公、商业。其中A栋办公楼地上26层,地下4层,采用钢筋混凝土框架一核心筒结构,结构高度99.600m;B栋办公楼区地上18层,地下4层,采用钢筋混凝土框架-核心筒结构,结构高度92.700m;裙房商业地上6层,地下4层,采用钢筋混凝土框架结构,结构高度33.900m;结构嵌固端位于负一层(绝对标高361.150m)。
资料截图
  • 2栋框架核心筒高层办公楼及裙房商业施工图
  • 2栋框架核心筒高层办公楼及裙房商业施工图
  • 2栋框架核心筒高层办公楼及裙房商业施工图