您当前位置:首页 » 结构工程 » 结构图纸 » 混凝土结构

两栋框架核心筒高层办公楼结构施工图

  • 资料等级:
  • 授权方式:资料共享
  • 发布时间:2026-03-24
  • 资料类型:RAR
  • 资料大小:12.3 MB
  • 资料分类:结构图纸
  • 运行环境:WinXp,Win2003,WinVista,Win ;
  • 解压密码:gc5.com
两栋框架核心筒高层办公楼结构施工图
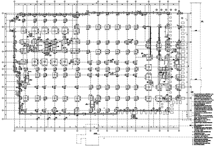
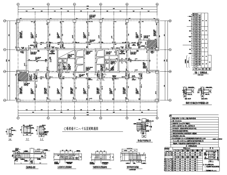
由两栋办公楼和裙房商业组成,主要功能为办公、商业。其中C栋办公楼区地上27层,地下3层,采用钢筋混凝土框架核心筒结构,结构高度116.00m;D栋办公楼区地上23层,地下3层,采用钢筋混凝土框架核心筒结构,结构高度97.200m,裙房商业地15层,地下3层,采用钢筋混凝土框架结构,结构高度35.900m。
资料截图
  • 两栋框架核心筒高层办公楼结构施工图
  • 两栋框架核心筒高层办公楼结构施工图