您当前位置:首页 » 结构工程 » 结构图纸 » 混凝土结构

2024 单层消防泵站钢混结构施工图

  • 资料等级:
  • 授权方式:资料共享
  • 发布时间:2026-03-24
  • 资料类型:RAR
  • 资料大小:5 MB
  • 资料分类:结构图纸
  • 运行环境:WinXp,Win2003,WinVista,Win ;
  • 解压密码:gc5.com
2024 单层消防泵站钢混结构施工图
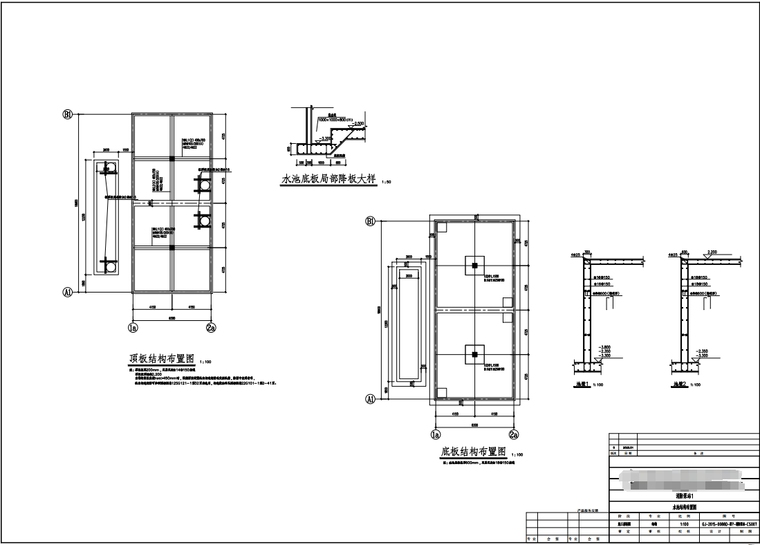
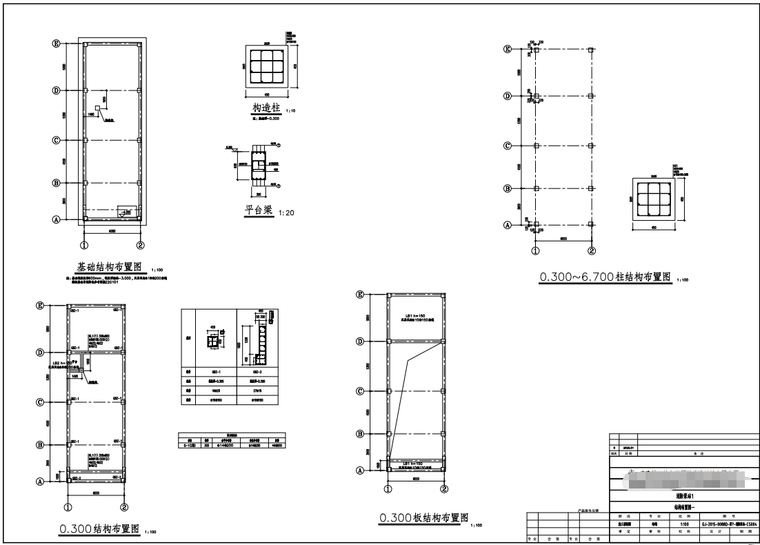
包括:结构设计说明;危险性较大的分部分项工程专篇;结构布置图;水池设计说明;水池结构布置图;
资料截图
  • 2024 单层消防泵站钢混结构施工图
  • 2024 单层消防泵站钢混结构施工图