您当前位置:首页 » 结构工程 » 结构图纸 » 混凝土结构

2024 油污水处理站结构施工图(含建筑图)

  • 资料等级:
  • 授权方式:资料共享
  • 发布时间:2026-03-24
  • 资料类型:RAR
  • 资料大小:9.2 MB
  • 资料分类:结构图纸
  • 运行环境:WinXp,Win2003,WinVista,Win ;
  • 解压密码:gc5.com
2024 油污水处理站结构施工图(含建筑图)
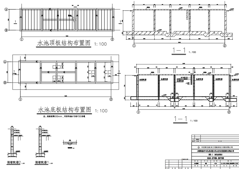
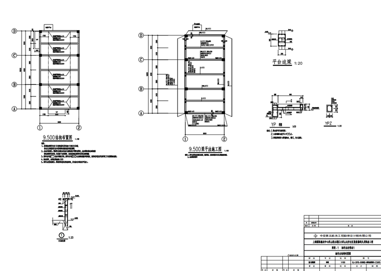
包括:结构设计说明;基础结构布置图;油污水结构布置图;水池设计说明;设备层平面图;污泥干化池;建筑施工图;
资料截图
  • 2024 油污水处理站结构施工图(含建筑图)
  • 2024 油污水处理站结构施工图(含建筑图)