您当前位置:首页 » 结构工程 » 结构图纸 » 混凝土结构

2024 大学学生宿舍剪力墙结构施工图

  • 资料等级:
  • 授权方式:资料共享
  • 发布时间:2026-03-24
  • 资料类型:RAR
  • 资料大小:30 MB
  • 资料分类:结构图纸
  • 运行环境:WinXp,Win2003,WinVista,Win ;
  • 解压密码:gc5.com
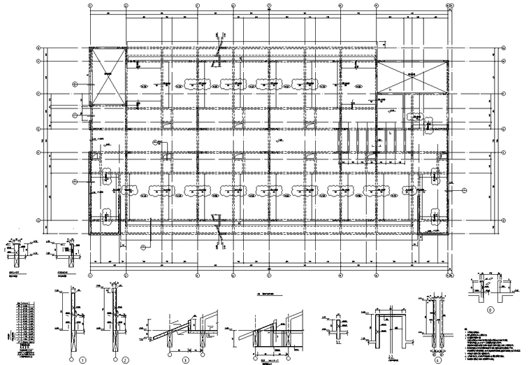
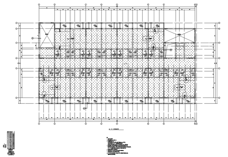
2024 大学学生宿舍剪力墙结构施工图
总建筑面积:34811.66m2;包括2栋学生宿舍及地下车库;
结构形式为:剪力墙结构;
主要预制结构构件:叠合楼板;
资料截图
  • 2024 大学学生宿舍剪力墙结构施工图
  • 2024 大学学生宿舍剪力墙结构施工图
  • 2024 大学学生宿舍剪力墙结构施工图