您当前位置:首页 » 结构工程 » 结构图纸 » 混凝土结构

2024 2层高级中学报告厅框架结构施工图

  • 资料等级:
  • 授权方式:资料共享
  • 发布时间:2026-03-24
  • 资料类型:RAR
  • 资料大小:5 MB
  • 资料分类:结构图纸
  • 运行环境:WinXp,Win2003,WinVista,Win ;
  • 解压密码:gc5.com
2024 2层高级中学报告厅框架结构施工图
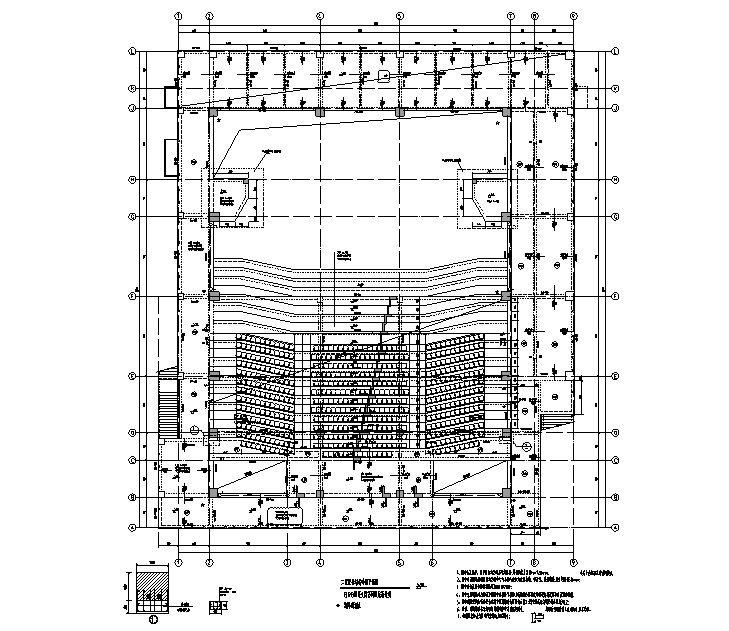
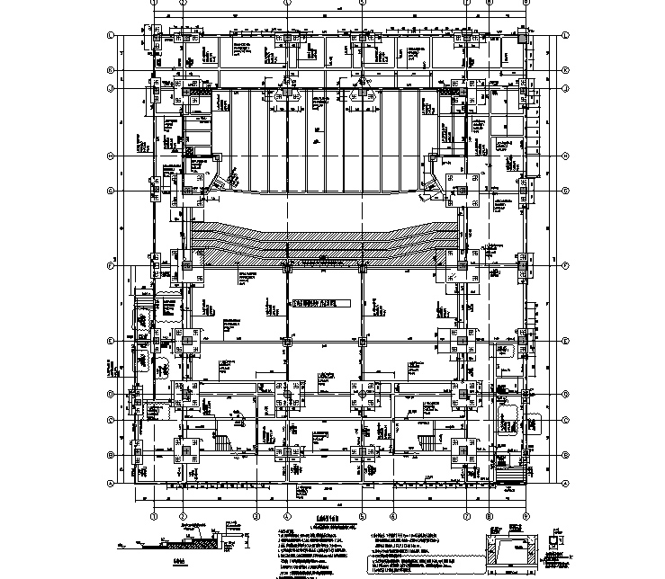
本项目为江苏宿迁市高级中学,子项目为报告厅。框架结构,地上2层,地下0层,主要结构跨度:9.40×7.30;
资料截图
  • 2024 2层高级中学报告厅框架结构施工图
  • 2024 2层高级中学报告厅框架结构施工图
  • 2024 2层高级中学报告厅框架结构施工图