包括:
服务区-总图;
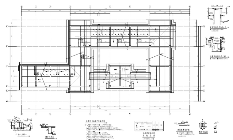
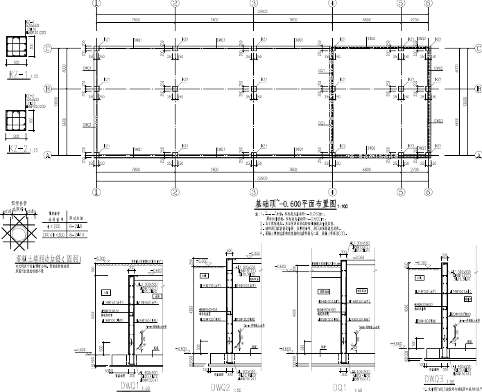
服务区-综合楼(南区) 2F 框架结构 商业、办公、宿舍 桩基
服务区-综合楼(北区) 2F 框架结构 商业、办公、宿舍 桩基
服务区-配电房 1F 框架结构 变配电室、发电机室 天然地基
服务区-水泵房 1F 框架结构 水池、泵房 天然地基
服务区-汽修房 1F 框架结构 汽修 天然地基
服务区-垃圾房 1F 框架结构 / 天然地基
警务室 1F 框架结构 / 天然地基






