2023 高速公路互通匝道收费站施工图设计
包括:
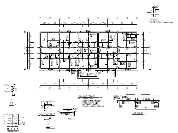
收费综合楼 +2F 0F 框架结构 办公、宿舍 桩基
配电房 1F 0F 框架结构 变配电室、发电机室 天然地基
水泵房 1F -1F 框架结构 水池、泵房 天然地基
门卫 1F 0F 框架结构 值班室 天然地基
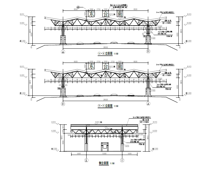
收费大棚 1F 0F 框架结构 收费 桩基






