您当前位置:首页 » 结构工程 » 结构图纸 » 混凝土结构

2023 高速公路服务区加油站施工图设计

  • 资料等级:
  • 授权方式:资料共享
  • 发布时间:2026-03-24
  • 资料类型:RAR
  • 资料大小:82 MB
  • 资料分类:结构图纸
  • 运行环境:WinXp,Win2003,WinVista,Win ;
  • 解压密码:gc5.com
2023 高速公路服务区加油站施工图设计
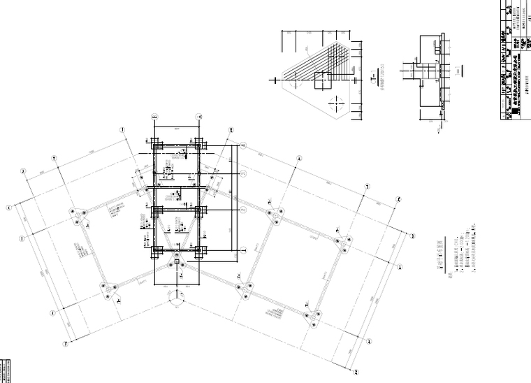
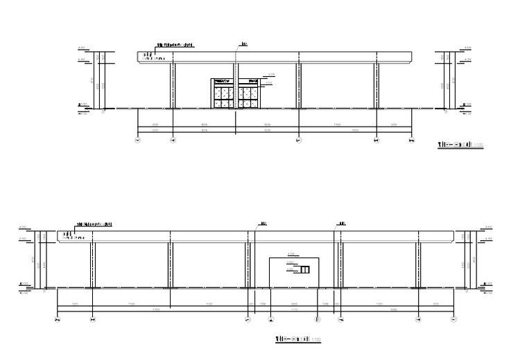
结构形式:钢筋混凝土框架结构;层数:一层;建筑总高:3.750m;平面尺寸:7m×16m;罩棚为钢框排架结构;(钢梁、檩条及附件)
资料截图
  • 2023 高速公路服务区加油站施工图设计
  • 2023 高速公路服务区加油站施工图设计
  • 2023 高速公路服务区加油站施工图设计