土方开挖基坑支护降水安全专项施工方案2023,127P,PDF文档
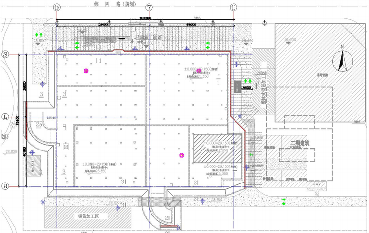
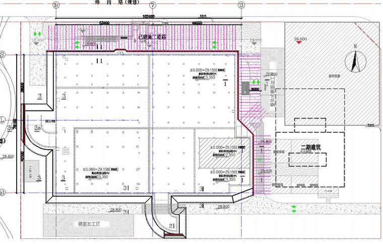
简介:总建筑面积约 46800 ㎡,其地下室为一层。核心筒+框架结构综合服务大厦正负零绝对标高为 29.150m,基坑内底板垫层底标高分别为 23.35m和 22.95m,预计开挖深度为 5.85m 和 5.45m。主体基坑周长 458.153m,面积 9917.746 ㎡。基坑土方开挖总量约 60000m³,基坑设计使用年限 1 年。桩承台基础,本项目基坑围护总体方案:地块整体北侧和东侧主要采用钢板桩+锚索支护,南侧和西侧主要采用 1:0.7 土钉墙的支护形式,坡道处采用钢板桩支护+放坡支护形式。降排水形式:集水明排,管井降水。





