同类工程可参考、推荐下载学习
目录:
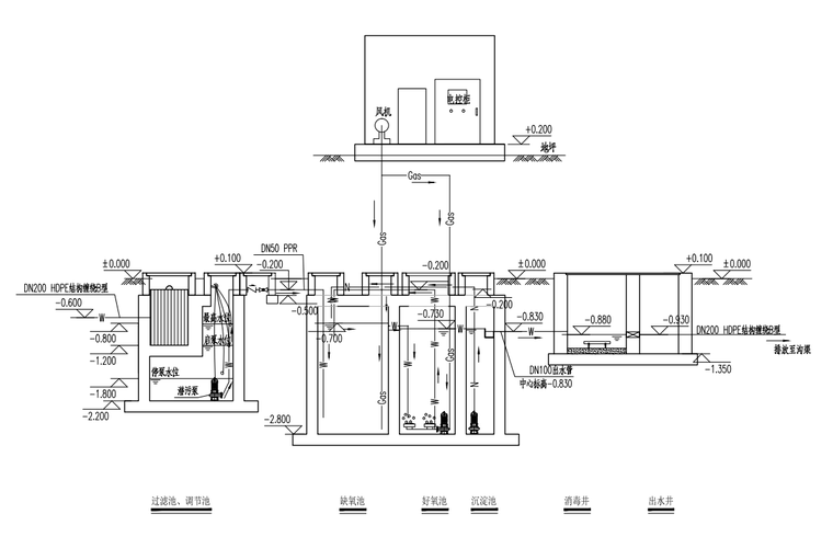
生活污水处理设施
改造前工艺流程图
改造后工艺流程图
改造前平面布置图
改造后平面布置图
改造后绿化布置图
改造后管线布置图
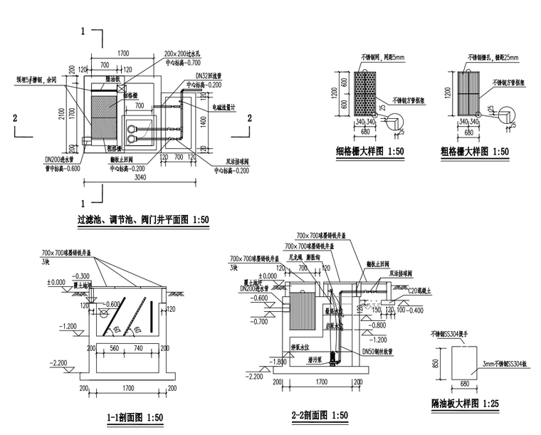
过滤池、调节池、阀门井详图
生化池详图
填料及出水堰安装详图
曝气管道安装图
消毒出水井详图
矮墙基础、设备房基础、标识牌详图
污水站施工工艺设计




RAR