中学综合楼给排水施工图2020(含大样图)

  • 资料等级:
  • 授权方式:资料共享
  • 发布时间:2026-04-07
  • 资料类型:RAR
  • 资料大小:35.2 MB
  • 资料分类:给排水图纸
  • 运行环境:WinXp,Win2003,WinVista,Win ;
  • 解压密码:gc5.com
中学综合楼给排水施工图2020(含大样图)
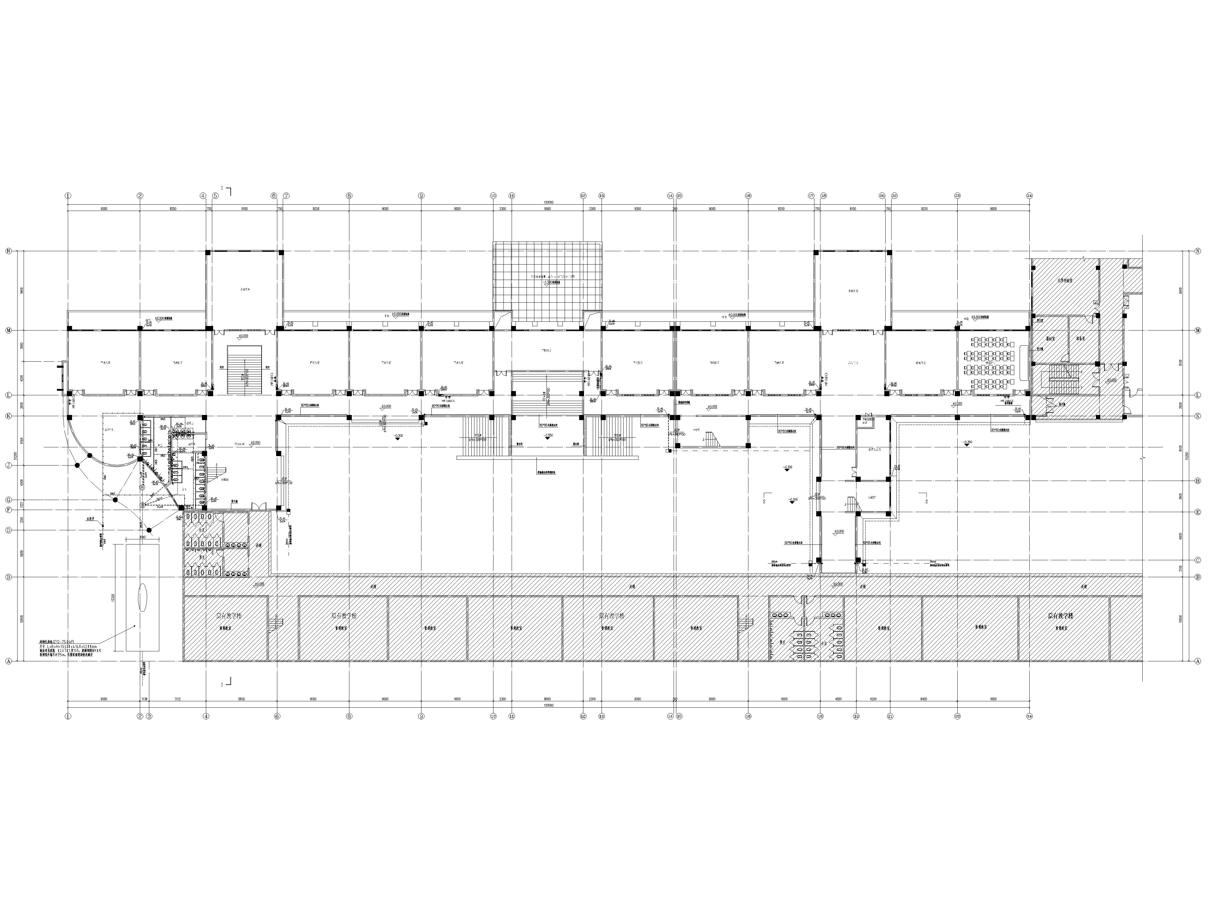
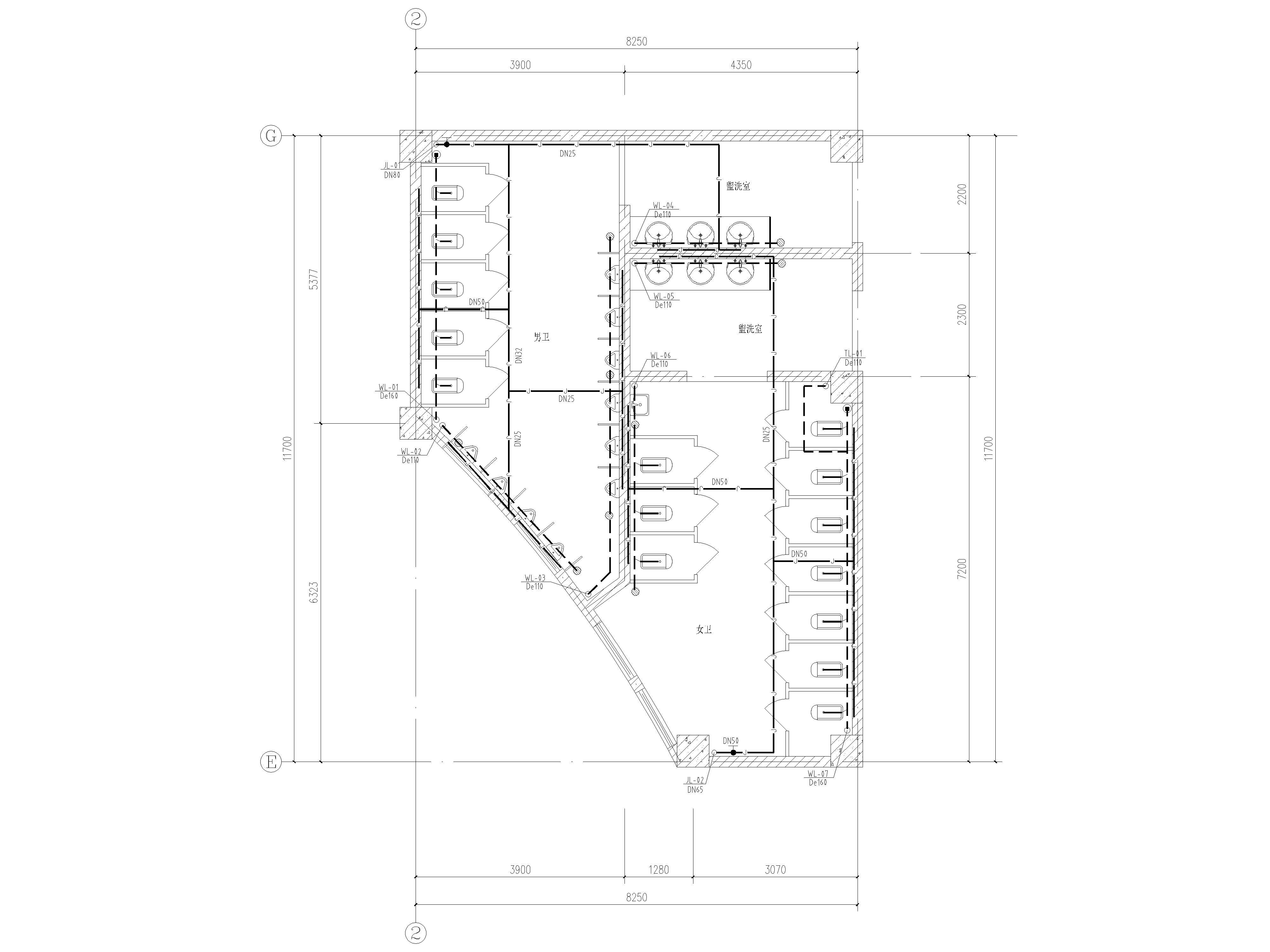
本工程为贵州省中学综合楼给排水施工图2020(含大样图)多层公共建筑,地上5层,建筑高度21.30m。
设计范围:本次给排水设计范围为给排水、消火栓给水系统、灭火器系统。
资料截图
  • 中学综合楼给排水施工图2020(含大样图)
  • 中学综合楼给排水施工图2020(含大样图)