小洋楼住宅给排水施工图

  • 资料等级:
  • 授权方式:资料共享
  • 发布时间:2026-04-07
  • 资料类型:RAR
  • 资料大小:38 MB
  • 资料分类:给排水图纸
  • 运行环境:WinXp,Win2003,WinVista,Win ;
  • 解压密码:gc5.com
小洋楼住宅给排水施工图
本工程从周边市政道路分别接入DN200市政给水管,供小区生活、消防给水,市政水压0.28MPa。

本工程雨、污分流,生活污水经化粪池处理,雨、污水分别排入周边市政道路预留的雨、污水井。

设计范围:本设计给排水系统包括:生活给水系统、生活污水系统、屋面雨水系统,室内消火栓给水系统、建筑灭火器配置
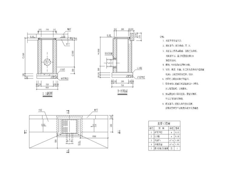
资料截图
  • 小洋楼住宅给排水施工图
  • 小洋楼住宅给排水施工图