您当前位置:首页 » 给排水工程 » 给排水图集

上海市政工程设计研究院排水结构通用图

  • 资料等级:
  • 授权方式:资料共享
  • 发布时间:2026-04-07
  • 资料类型:RAR
  • 资料大小:6.23 MB
  • 资料分类:给排水工程
  • 运行环境:WinXp,Win2003,WinVista,Win ;
  • 解压密码:gc5.com
上海市政工程设计研究院排水结构通用图
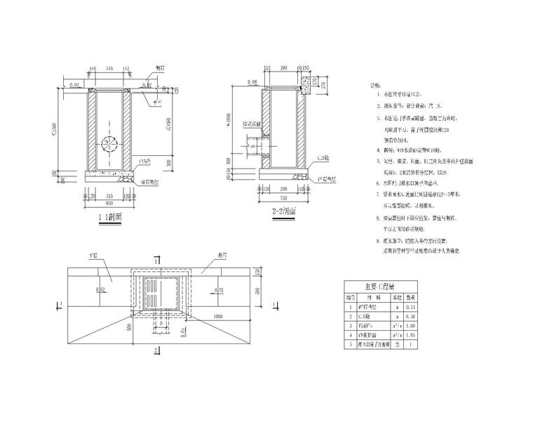
本通用图适用在江浙地区软土地基室外排水管道工程建设中应用。
本通用图分二册:第一册的内容有管道基座、管道接口、雨水进水口、管道交叉和排放口等;第二册为方型、矩型砖砌排水检查井及相关详图等。其它有关内容有待于在工程实践中不断地补充和丰富。
资料截图
  • 上海市政工程设计研究院排水结构通用图
  • 上海市政工程设计研究院排水结构通用图