您当前位置:首页 » 园林工程 » 园林图纸 » 园林建筑及相关

住宅入口景观施工图

  • 资料等级:
  • 授权方式:资料共享
  • 发布时间:2026-04-02
  • 资料类型:RAR
  • 资料大小:10 MB
  • 资料分类:园林图纸
  • 运行环境:WinXp,Win2003,WinVista,Win ;
  • 解压密码:gc5.com
住宅入口景观施工图
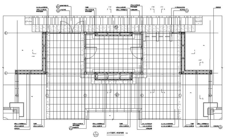
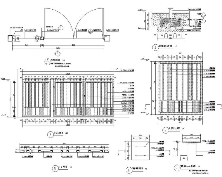
图纸包含:J-1.2~J-1.2.4主入口门楼详图一~五、J-1.2.5~J-1.2.9主入口门楼详图六~十、J-1.2.10~J-1.2.11主入口门楼详图十一~十二、J-1.2.12~J-1.2.13主入口门楼详图十三~十五等共110页
资料截图
  • 住宅入口景观施工图
  • 住宅入口景观施工图
  • 住宅入口景观施工图