您当前位置:首页 » 园林工程 » 园林图纸 » 园林建筑及相关

住宅区结构土建园林施工总承包

  • 资料等级:
  • 授权方式:资料共享
  • 发布时间:2026-04-02
  • 资料类型:RAR
  • 资料大小:150 MB
  • 资料分类:园林图纸
  • 运行环境:WinXp,Win2003,WinVista,Win ;
  • 解压密码:gc5.com
住宅区结构土建园林施工总承包
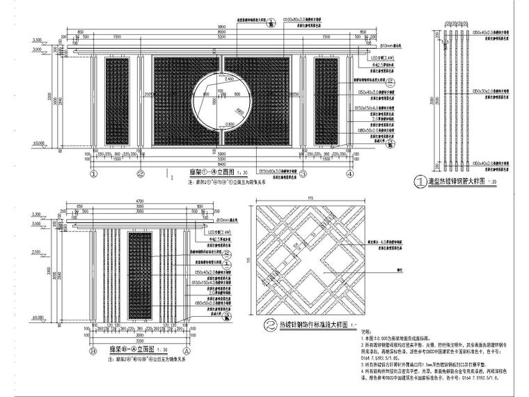
住宅区结构土建园林施工总承包CAD图纸

方案设计方案创意独特,制作非常详细,可以在同类项目中做参考或适当修改后使用
资料截图
  • 住宅区结构土建园林施工总承包
  • 住宅区结构土建园林施工总承包
  • 住宅区结构土建园林施工总承包