您当前位置:首页 » 水利工程 » 水利图纸 » 大坝堤防

2022 小型水库扩能工程施工图

  • 资料等级:
  • 授权方式:资料共享
  • 发布时间:2026-03-16
  • 资料类型:RAR
  • 资料大小:90 MB
  • 资料分类:水利图纸
  • 运行环境:WinXp,Win2003,WinVista,Win ;
  • 解压密码:gc5.com
2022 小型水库扩能工程施工图
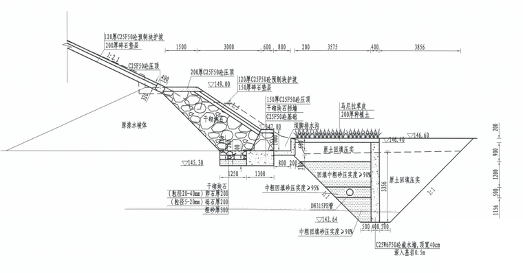
水库正常蓄水位159.80m,正常库容17.72万m³;校核洪水位160.93m,总库容23.58万m³。水库是一座以灌溉为主的小(2)型水库,灌溉面积800亩。水库工程等别为V等,主要建筑物大坝、溢洪道、灌溉涵管进水口等为5级建筑物,其它次要建筑物为5级建筑物。永久性水工建筑物设计洪水标准为20年一遇,校核洪水标准为200年一遇。
资料截图
  • 2022 小型水库扩能工程施工图
  • 2022 小型水库扩能工程施工图
  • 2022 小型水库扩能工程施工图