您当前位置:首页 » 路桥工程 » 路桥施工方案

双塔双索面钢混组合梁斜拉桥施工组织设计

  • 资料等级:
  • 授权方式:资料共享
  • 发布时间:2026-03-23
  • 资料类型:RAR
  • 资料大小:2.7 MB
  • 资料分类:路桥工程
  • 运行环境:WinXp,Win2003,WinVista,Win ;
  • 解压密码:gc5.com
双塔双索面钢混组合梁斜拉桥施工组织设计
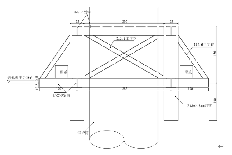
本大桥长2287m,桥跨布置为:23×30+(40+175+410+175+40)+25×30m,主桥桥型为双塔双索面钢-混组合梁斜拉桥,长度840m。主桥上部结构为双塔双索面钢-混组合梁斜拉桥,辅助墩采用3.0×2.5m实心墩,4根Φ1.5m钻孔桩基础,承台6.4×6.4×2.5m;主桥侧共用墩采用2.6×2.4m实心墩,6根Φ1.5m钻孔桩基础,承台14.7×6.4×3.0m;索塔采用H型索塔,单箱单室空心箱型截面,A侧塔高为138.0m,基础采用40根直径Φ2.0m钻孔桩,桩长96m,承台24.0×18.9×5.0m,索塔塔座高2.0m,顶面16.0×10.9m,底面20.0×14.9m;索塔两侧双索面扇形布置16对斜拉索,斜拉索塔端锚固于中塔柱钢锚梁上,梁端锚固于主梁钢锚箱上,两端均采用张拉端冷铸墩头锚。
资料截图
  • 双塔双索面钢混组合梁斜拉桥施工组织设计
  • 双塔双索面钢混组合梁斜拉桥施工组织设计