售楼处CAD全套施工图,供参考学习。
00-封面.dwg
01-目录.dwg
02-施工说明.dwg
03-材料表.dwg
04-平面系统图.dwg
05-一层立面造型图.dwg
06-二层立面造型图.dwg
07-三层立面造型图.dwg
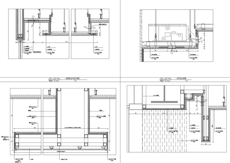
08-天花节点大样图.dwg
09-地面节点大样图.dwg
10-墙身节点大样图.dwg
11-柜体节点大样图.dwg
12-门表节点大样图.dwg
13-海宁电梯内装施工图纸.dwg
海宁售楼处初步点位-2022-04-25..dwg
海宁长安售楼处饰电施0420.dwg
海宁长安售楼灯光控制系统图修改意见.dwg
1水施-海宁长安售楼处0412.dwg








