您当前位置:首页 » 建筑工程 » 建筑图纸 » 建筑户型平面图

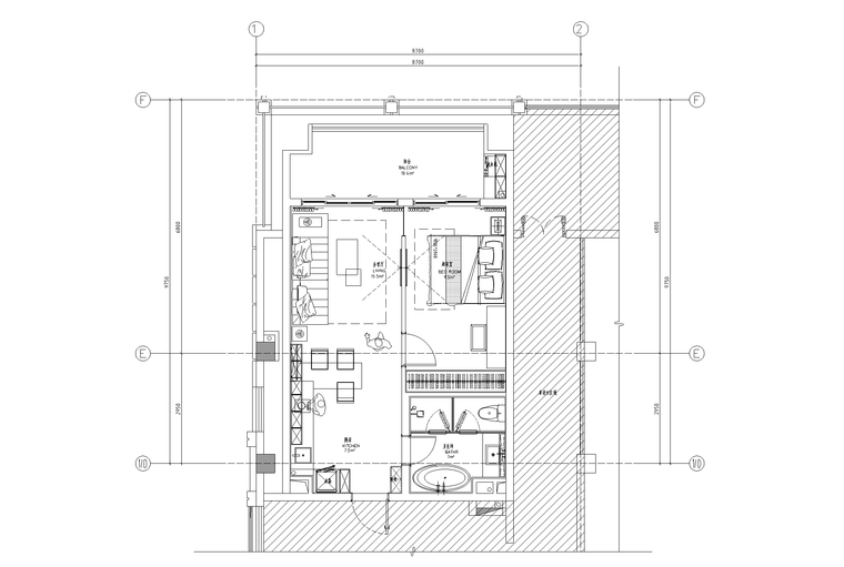
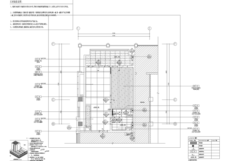
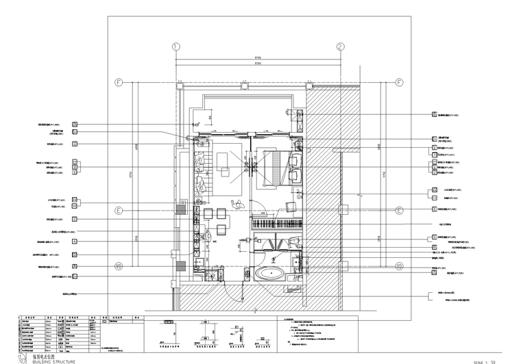
酒店公寓A户型样板间施工图

  • 资料等级:
  • 授权方式:资料共享
  • 发布时间:2026-03-26
  • 资料类型:RAR
  • 资料大小:21 MB
  • 资料分类:建筑图纸
  • 运行环境:WinXp,Win2003,WinVista,Win ;
  • 解压密码:gc5.com
酒店公寓A户型样板间施工图
内容包含:CAD施工图+打印线性+效果图3张(封面,图纸目录,施工设计说明,平面系统图,节点大样,装饰材料表,固定家私,天花大样,墙身大样,门样图纸等)等
资料截图
  • 酒店公寓A户型样板间施工图
  • 酒店公寓A户型样板间施工图
  • 酒店公寓A户型样板间施工图