您当前位置:首页 » 建筑工程 » 建筑图纸 » 建筑户型平面图

龙湖松江·御湖境143户型CAD施工图

  • 资料等级:
  • 授权方式:资料共享
  • 发布时间:2026-03-19
  • 资料类型:RAR
  • 资料大小:58 MB
  • 资料分类:建筑图纸
  • 运行环境:WinXp,Win2003,WinVista,Win ;
  • 解压密码:gc5.com
龙湖松江·御湖境143户型CAD施工图
资料内容包含:全套CAD施工图(封面,图纸目录,施工设计说明,平面系统图,立面系统图,节点大样,柜子图纸等),施工图+高清效果图+官方摄影等
资料截图
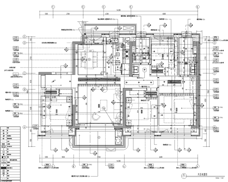
  • 龙湖松江·御湖境143户型CAD施工图
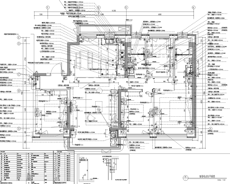
  • 龙湖松江·御湖境143户型CAD施工图
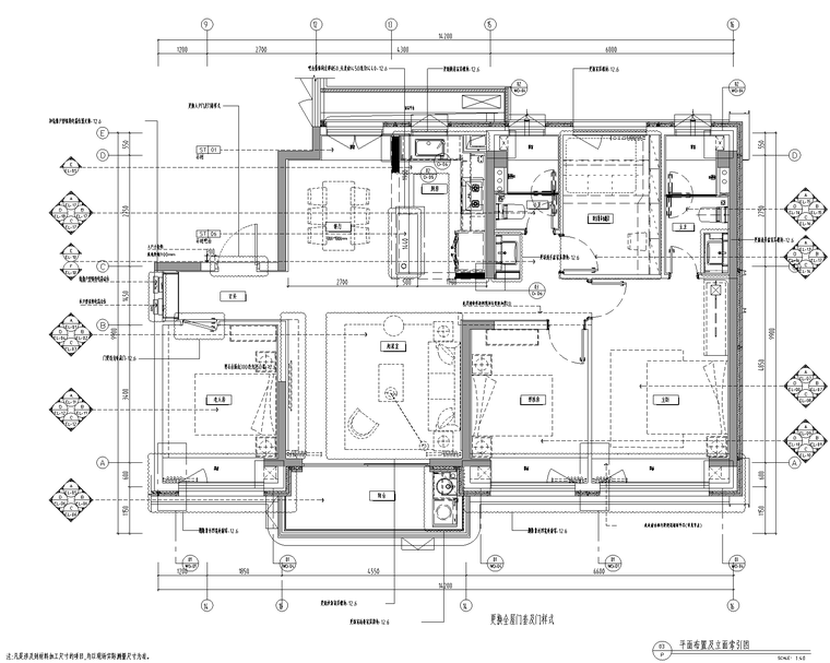
  • 龙湖松江·御湖境143户型CAD施工图