您当前位置:首页 » 建筑工程 » 建筑图纸 » 建筑户型平面图

保亿观云钱塘大平层样板间CAD施工图

  • 资料等级:
  • 授权方式:资料共享
  • 发布时间:2026-03-19
  • 资料类型:RAR
  • 资料大小:170 MB
  • 资料分类:建筑图纸
  • 运行环境:WinXp,Win2003,WinVista,Win ;
  • 解压密码:gc5.com
保亿观云钱塘大平层样板间CAD施工图
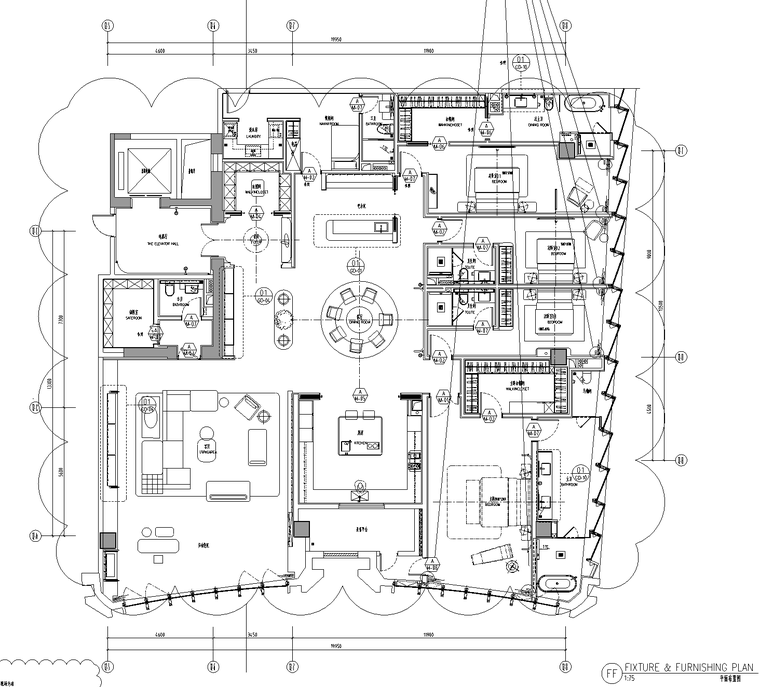
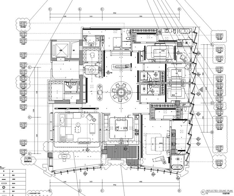
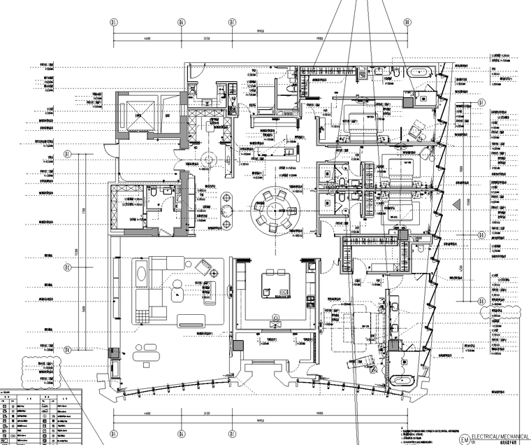
保亿观云钱塘C户型485m²大平层样板间CAD施工图包含:全套CAD施工图(封面,图纸目录,施工设计说明,平面系统图,立面系统图,节点大样,柜子图纸等),CAD施工图+PPT方案46页+效果图16张等
资料截图
  • 保亿观云钱塘大平层样板间CAD施工图
  • 保亿观云钱塘大平层样板间CAD施工图
  • 保亿观云钱塘大平层样板间CAD施工图