您当前位置:首页 » 建筑工程 » 建筑图纸 » 工业、农业建筑

酒店客房扩初图纸

  • 资料等级:
  • 授权方式:资料共享
  • 发布时间:2026-03-26
  • 资料类型:RAR
  • 资料大小:200 MB
  • 资料分类:建筑图纸
  • 运行环境:WinXp,Win2003,WinVista,Win ;
  • 解压密码:gc5.com
酒店客房扩初图纸
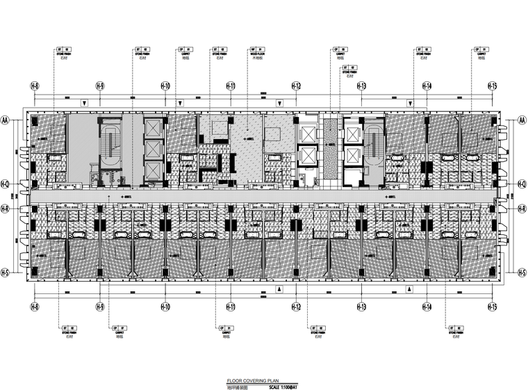
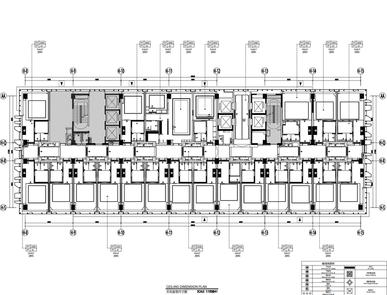
内容包含:客房图纸(封面,图纸目录,施工图设计说明、平面图,立面图,节点大样,机电等)PDF版图纸
资料截图
  • 酒店客房扩初图纸
  • 酒店客房扩初图纸
  • 酒店客房扩初图纸