您当前位置:首页 » 建筑工程 » 建筑图纸 » 工业、农业建筑

现代中式民宿酒店全套CAD施工图

  • 资料等级:
  • 授权方式:资料共享
  • 发布时间:2026-03-26
  • 资料类型:RAR
  • 资料大小:36.8 MB
  • 资料分类:建筑图纸
  • 运行环境:WinXp,Win2003,WinVista,Win ;
  • 解压密码:gc5.com
现代中式民宿酒店全套CAD施工图
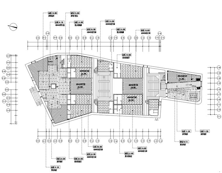
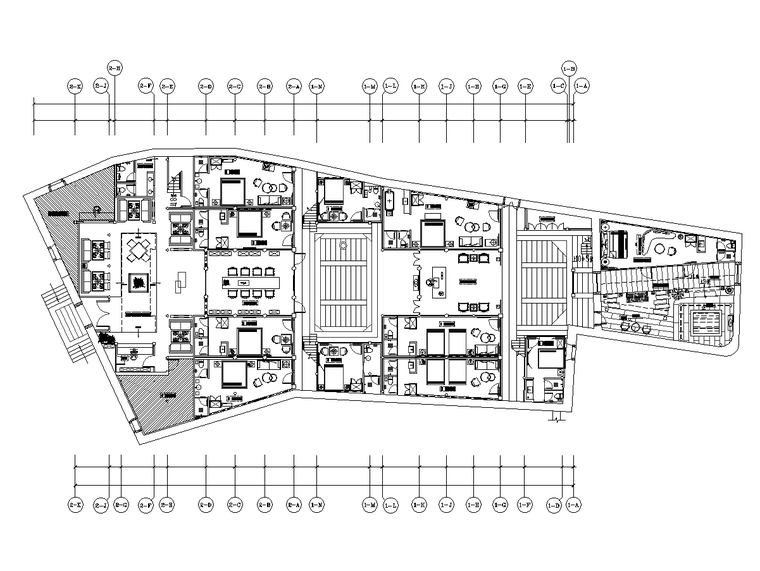
内容包含:01.图纸目录;02.总平面图;03.早餐休闲区;04.茶艺区;05.书画区;06—23.各种房型平立面图;24.后花园;25.门头立面图25.门头大样图。
资料截图
  • 现代中式民宿酒店全套CAD施工图
  • 现代中式民宿酒店全套CAD施工图
  • 现代中式民宿酒店全套CAD施工图