您当前位置:首页 » 建筑工程 » 建筑图纸 » 工业、农业建筑

山地民宿建筑CAD施工图

  • 资料等级:
  • 授权方式:资料共享
  • 发布时间:2026-03-26
  • 资料类型:RAR
  • 资料大小:46 MB
  • 资料分类:建筑图纸
  • 运行环境:WinXp,Win2003,WinVista,Win ;
  • 解压密码:gc5.com
山地民宿建筑CAD施工图
资料内容包含:CAD建筑施工图+SU模型源文件+效果图6张等
资料截图
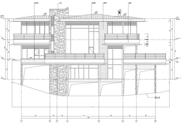
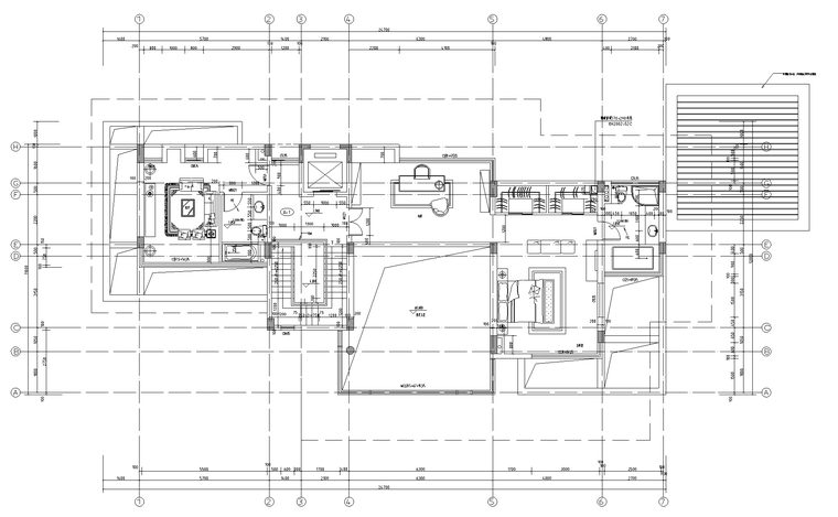
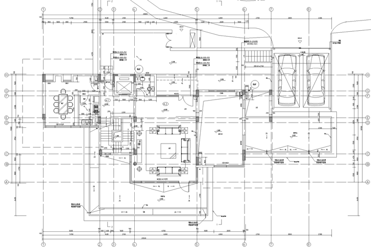
  • 山地民宿建筑CAD施工图
  • 山地民宿建筑CAD施工图
  • 山地民宿建筑CAD施工图