您当前位置:首页 » 结构工程 » 结构图纸 » 砌体结构

2025创投产业园项目全套结构施工图(建筑图)

  • 资料等级:
  • 授权方式:资料共享
  • 发布时间:2026-03-23
  • 资料类型:RAR
  • 资料大小:82.7 MB
  • 资料分类:结构图纸
  • 运行环境:WinXp,Win2003,WinVista,Win ;
  • 解压密码:gc5.com
2025创投产业园项目全套结构施工图(建筑图)
建筑类型和分类:主要包括商务办公、产交中心、报告厅、餐厅及商业配套用房,地下建设内容主要包括机动车库、非机动车库及部分配套用房;
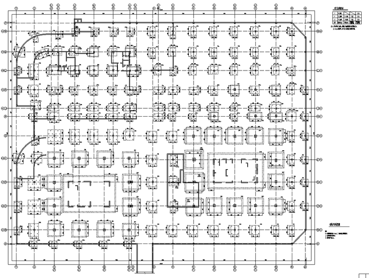
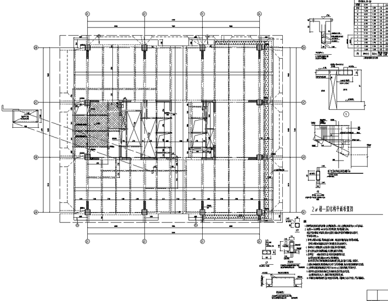
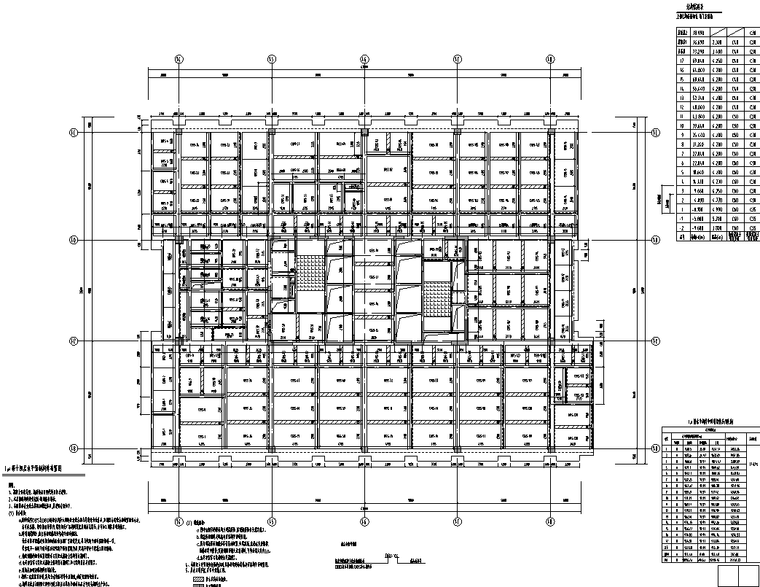
资料截图
  • 2025创投产业园项目全套结构施工图(建筑图)
  • 2025创投产业园项目全套结构施工图(建筑图)
  • 2025创投产业园项目全套结构施工图(建筑图)