您当前位置:首页 » 结构工程 » 结构图纸 » 砌体结构

2025 码头工程全套建筑结构施工图

  • 资料等级:
  • 授权方式:资料共享
  • 发布时间:2026-03-23
  • 资料类型:RAR
  • 资料大小:28 MB
  • 资料分类:结构图纸
  • 运行环境:WinXp,Win2003,WinVista,Win ;
  • 解压密码:gc5.com
2025 码头工程全套建筑结构施工图
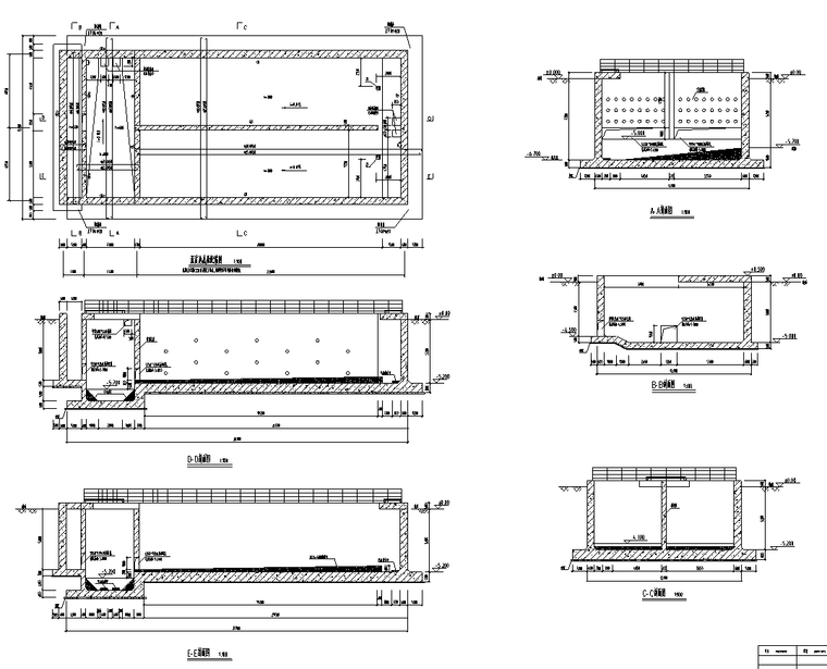
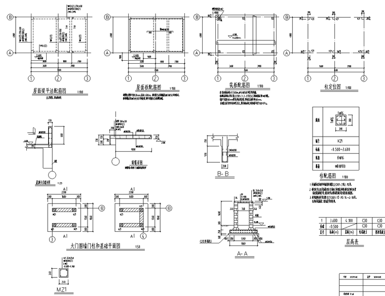
包括:综合办公楼,框架结构;候工楼,框架结构;矿建仓库,网架结构;转运站,框架结构;机修材料库,框架结构;地磅房及地磅,框架结构;溢油应急设备库;消防泵房;散货污水处理站;生活污水处理站;含油污水处理站;变电所;变电所;门卫和围墙;栈桥;灯类基础;洗轮机基础;
资料截图
  • 2025 码头工程全套建筑结构施工图
  • 2025 码头工程全套建筑结构施工图
  • 2025 码头工程全套建筑结构施工图
  • 2025 码头工程全套建筑结构施工图