您当前位置:首页 » 结构工程 » 结构图纸 » 钢结构

二层高低跨门式钢框架厂房结构施工图

  • 资料等级:
  • 授权方式:资料共享
  • 发布时间:2026-03-24
  • 资料类型:RAR
  • 资料大小:2.8 MB
  • 资料分类:结构图纸
  • 运行环境:WinXp,Win2003,WinVista,Win ;
  • 解压密码:gc5.com
二层高低跨门式钢框架厂房结构施工图
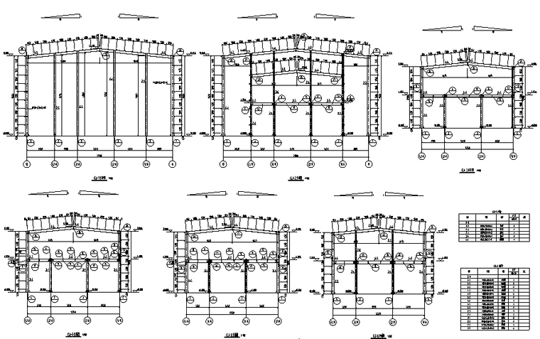
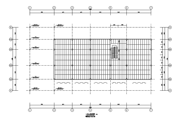
本工程轴线总长40.500米,轴线宽21.200米,高度为11.650米,结构采用门式钢框架结构。
外墙:标高0 .45m以下为150mm厚页岩多孔砖砖墙,M5 混合砂浆;铝合金普通门、铝合金普通窗;
标高0.45m以上为0.5厚900型单层彩钢板。
本工程屋面为0.5厚860型单层彩钢板。
资料截图
  • 二层高低跨门式钢框架厂房结构施工图
  • 二层高低跨门式钢框架厂房结构施工图
  • 二层高低跨门式钢框架厂房结构施工图