您当前位置:首页 » 给排水工程 » 给排水图纸 » 污水处理图

2023 污水处理站建设工程全套施工图

  • 资料等级:
  • 授权方式:资料共享
  • 发布时间:2026-03-16
  • 资料类型:RAR
  • 资料大小:124 MB
  • 资料分类:给排水图纸
  • 运行环境:WinXp,Win2003,WinVista,Win ;
  • 解压密码:gc5.com
2023 污水处理站建设工程全套施工图
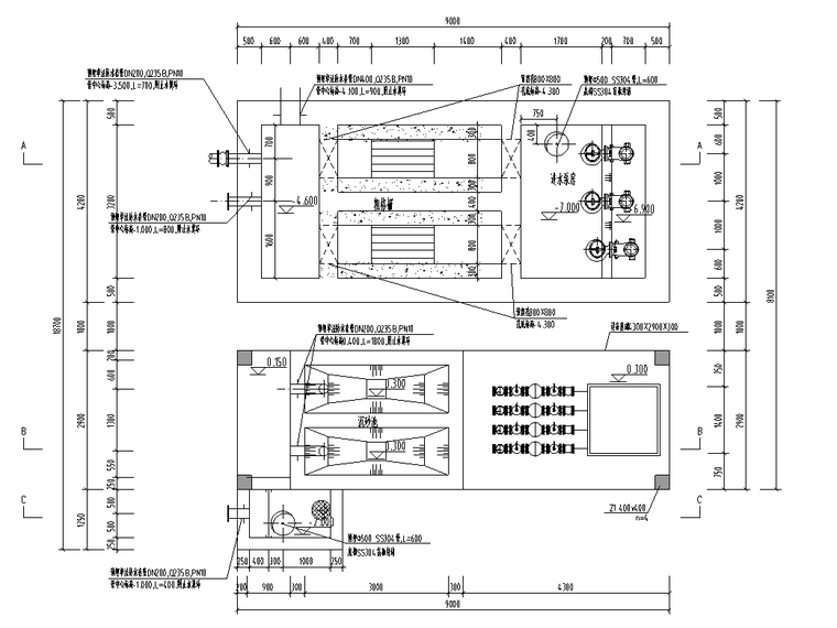
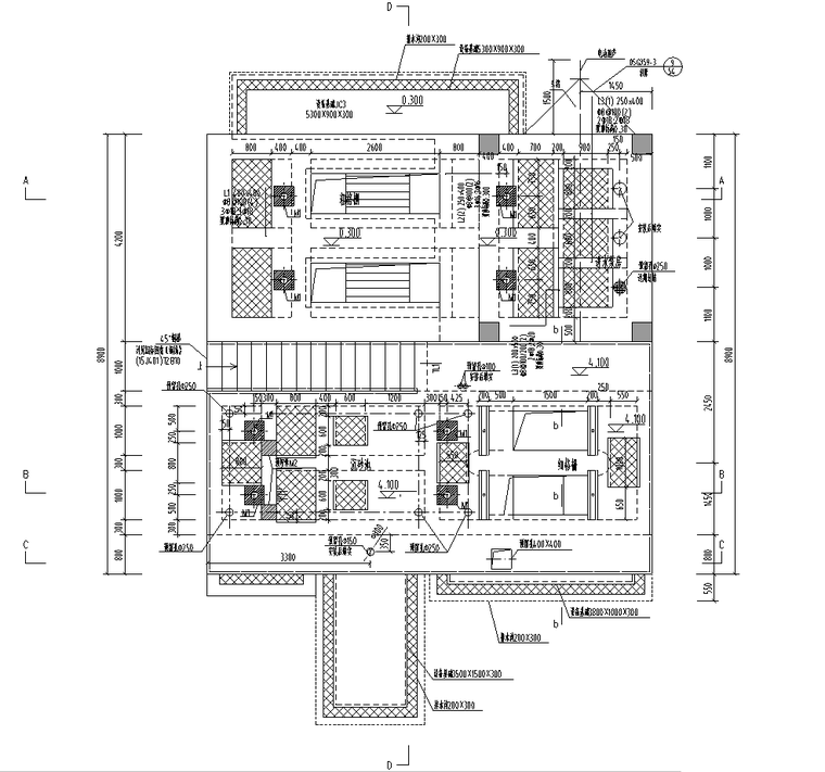
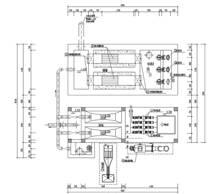
本单项工程为温泉度假村污水处理站建设工程,再生水池、出水泵房及出水仪表间(火灾危险性类别为丁类),耐火等级为二级,建筑为两层框架结构,建筑占地面积为20.00㎡,总建筑面积139.89㎡,建筑高度为5.10m(室外地面至檐口与屋脊的平均高度)。建筑分层面积表:地下-层面积120.00㎡,层面19.89㎡。
资料截图
  • 2023 污水处理站建设工程全套施工图
  • 2023 污水处理站建设工程全套施工图
  • 2023 污水处理站建设工程全套施工图